Search a Street, City, Province, RP Number or MLS® Number
 

Lw14 209 Lewis Drive West Bedford, Nova Scotia B4B 0L3

No favourites found!

 

$844,900

MLS® Number: 202529247
4 4

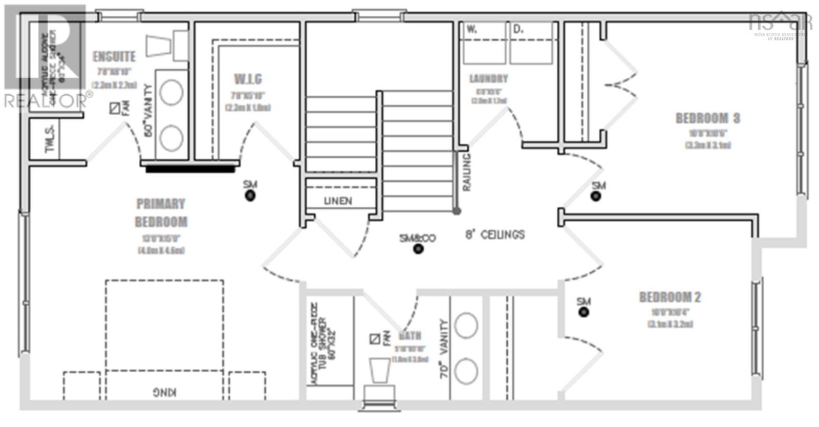
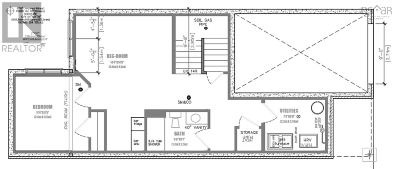
Introducing The Bellmore, a beautifully crafted 4-bedroom, 3.5-bath detached home byShaughnessy Homes in Belle Rose Park, West Bedford. Spanning 2,537 sq. ft. across three finished levels on a 34 lot, this homeblends modern style with everyday functionality. The main floor features an open-concept layout with a designer kitchen boasting awalk-in pantry, premium quartz countertops, and soft-close cabinetry. A stylish dining room bump-out adds a touch of elegance,perfect for gatherings. Engineered hardwood flows through the main and upper levels, complemented by an electric fireplace in theliving area. Step outside to a beautifully finished composite deck, providing long-lasting durability with low maintenance. The finishedbasement, with durable laminate flooring, offers flexible space for family or guests. If you're looking for a walk-out basement equippedwith a wet bar, washer and dryer rough in, bedroom, bathroom and a rec room - we have a limited number of The Bellmore walkoutmodels for $859,900, perfect for extended members of the family. Both versions include a fully ducted heat pump with natural gasbackup, plus rough-ins for a gas range, dryer, BBQ, water heater, and a 50 AMP EV charger. Nestled off Larry Uteck Blvd in theserene Belle Rose Park, this home is steps from schools, parks, and amenities. Built with Shaughnessy Homes signature quality,The Bellmore is a rare find in one of Bedfords most desirable communities. (id:59126)

Property Details

MLS® Number 202529247
Property Type Single Family
Community Name West Bedford
Amenities Near By Park, Playground, Public Transit, Shopping
Community Features Recreational Facilities, School Bus

Building

Bathroom Total 4
Bedrooms Above Ground 3
Bedrooms Below Ground 1
Bedrooms Total 4
Appliances None
Constructed Date 2025
Construction Style Attachment Detached
Cooling Type Heat Pump
Exterior Finish Stone, Vinyl
Fireplace Present Yes
Flooring Type Engineered Hardwood, Laminate, Tile
Foundation Type Poured Concrete
Half Bath Total 1
Stories Total 2
Size Interior 2,537 Ft2
Total Finished Area 2537 Sqft
Type House
Utility Water Municipal Water

Rooms

Level Type Dimensions
Second Level Primary Bedroom 13 x 15
Second Level Ensuite (# Pieces 2-6) 5 Piece
Second Level Bedroom 10.8 x 10.6
Second Level Bedroom 10 x 10.4
Second Level Bath (# Pieces 1-6) 4 Piece
Second Level Laundry Room 6.8 x 5.6
Lower Level Kitchen 8.1 x 13.9
Lower Level Recreational, Games Room 14.4 x 14.8
Lower Level Bedroom 11.4 x 11.5
Lower Level Bath (# Pieces 1-6) 4 Piece
Main Level Foyer 6.2 x 10.2
Main Level Bath (# Pieces 1-6) 2 Piece
Main Level Living Room 9 x 14.1
Main Level Dining Room 12 x 8.6

Land

Acreage No
Land Amenities Park, Playground, Public Transit, Shopping
Landscape Features Landscaped
Sewer Municipal Sewage System
Size Irregular 0.1057
Size Total 0.1057 Ac
Size Total Text 0.1057 Ac

Parking

Garage
Paved Yard

https://www.realtor.ca/real-estate/29175212/lw14-209-lewis-drive-west-bedford-west-bedford

Contact Us

Contact us for more information

Generating Captcha

    Your Name *

    Your Email *

    Your Contact Number *

    Subject

    Your Message

    Thank you for contacting us, one of our colleagues will contact you shortly. Thank you.

    Lakeridge Property International

    close-link