Search a Street, City, Province, RP Number or MLS® Number
 

Lw13 206 Lewis Drive Bedford, Nova Scotia B4B 0L3

No favourites found!

 

$859,900

MLS® Number: 202529242
4 4

**Ready to move in by February 28, 2026** Introducing The Bellmore, a beautifully crafted 4-bedroom, 3.5-bath detached home by Shaughnessy Homes in Belle Rose Park, West Bedford. Spanning 2,537 sq. ft. across three finished levels on a 34 lot, this home blends modern style with everyday functionality. The main floor features an open-concept layout with a designer kitchen boasting a walk-in pantry, premium quartz countertops, and soft-close cabinetry. A stylish dining room bump-out adds a touch of elegance, perfect for gatherings. Engineered hardwood flows through the main and upper levels, complemented by an electric fireplace in the living area. Step outside to a beautifully finished composite deck, providing long-lasting durability with low maintenance. The finished WALKOUT basement is equipped with a wet bar, large bedroom, full bathroom and a spacious rec room perfect for extended family members. This home includes a fully ducted heat pump with natural gas backup, plus rough-ins for a gas range, dryer, BBQ, water heater, and a 50 AMP EV charger. Nestled off Larry Uteck Blvd in the serene Belle Rose Park, this home is steps from schools, parks, and amenities. Built with Shaughnessy Homes signature quality, The Bellmore is a rare find in one of Bedfords most desirable communities. (id:59126)

Property Details

MLS® Number 202529242
Property Type Single Family
Community Name Bedford
Amenities Near By Park, Playground, Shopping
Community Features Recreational Facilities, School Bus

Building

Bathroom Total 4
Bedrooms Above Ground 3
Bedrooms Below Ground 1
Bedrooms Total 4
Appliances None
Construction Style Attachment Detached
Cooling Type Heat Pump
Exterior Finish Stone, Vinyl
Fireplace Present Yes
Flooring Type Engineered Hardwood, Laminate, Tile
Foundation Type Poured Concrete
Half Bath Total 1
Stories Total 2
Size Interior 2,537 Ft2
Total Finished Area 2537 Sqft
Type House
Utility Water Municipal Water

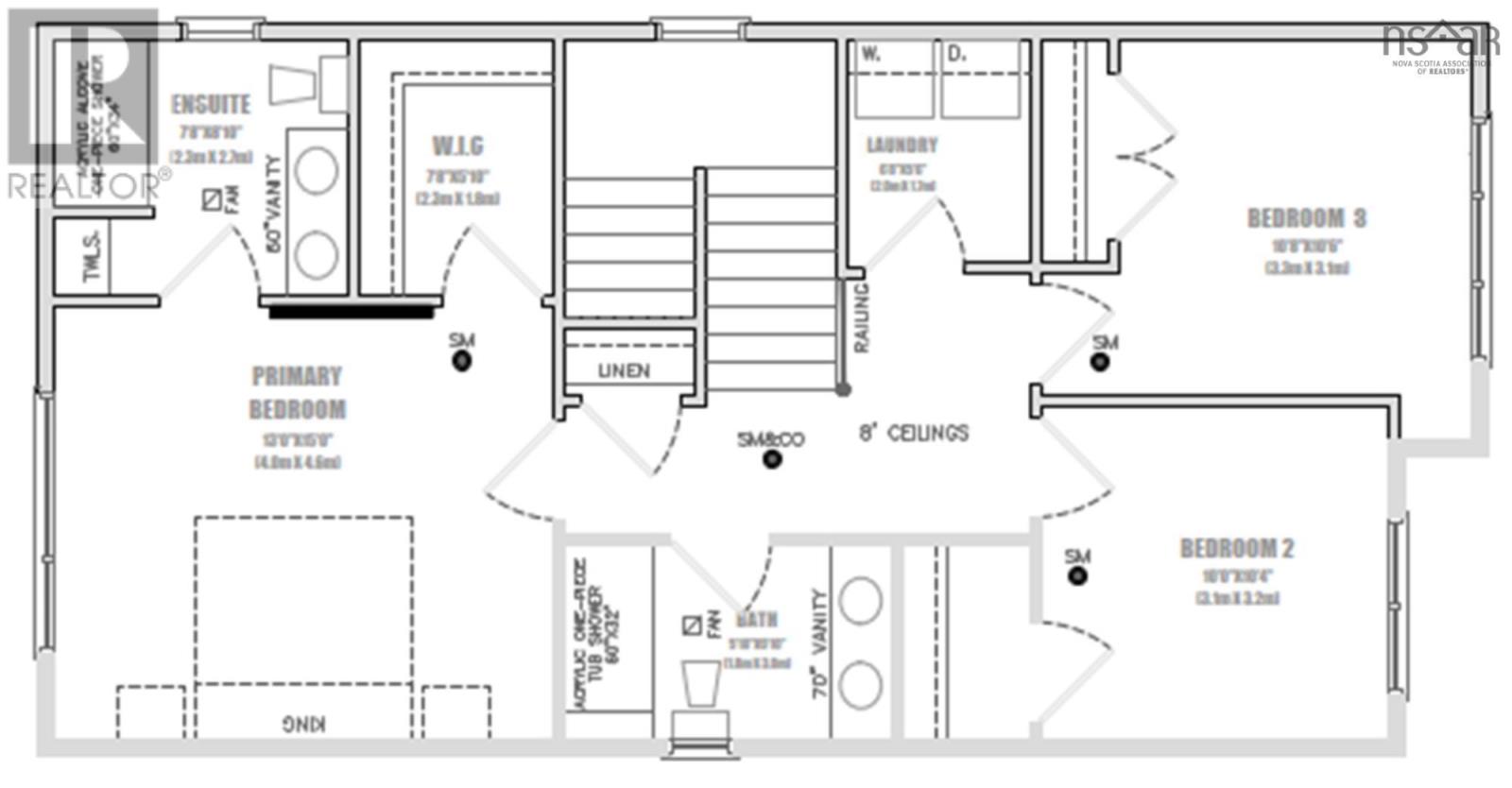
Rooms

Level Type Dimensions
Second Level Primary Bedroom 13x15
Second Level Ensuite (# Pieces 2-6) 5 pc
Second Level Bedroom 10.8 x 10.6
Second Level Bedroom 10x10.4
Second Level Bath (# Pieces 1-6) 4 pc
Second Level Laundry Room 6.8x 5.6
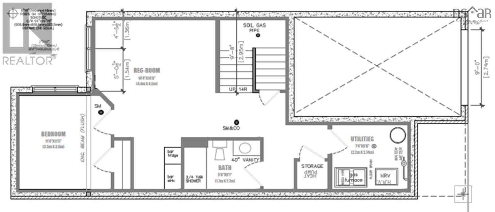
Lower Level Kitchen 8.1x13.9
Lower Level Recreational, Games Room 14.4X14.8
Lower Level Bedroom 11.4X11.5
Lower Level Bath (# Pieces 1-6) 4 pc
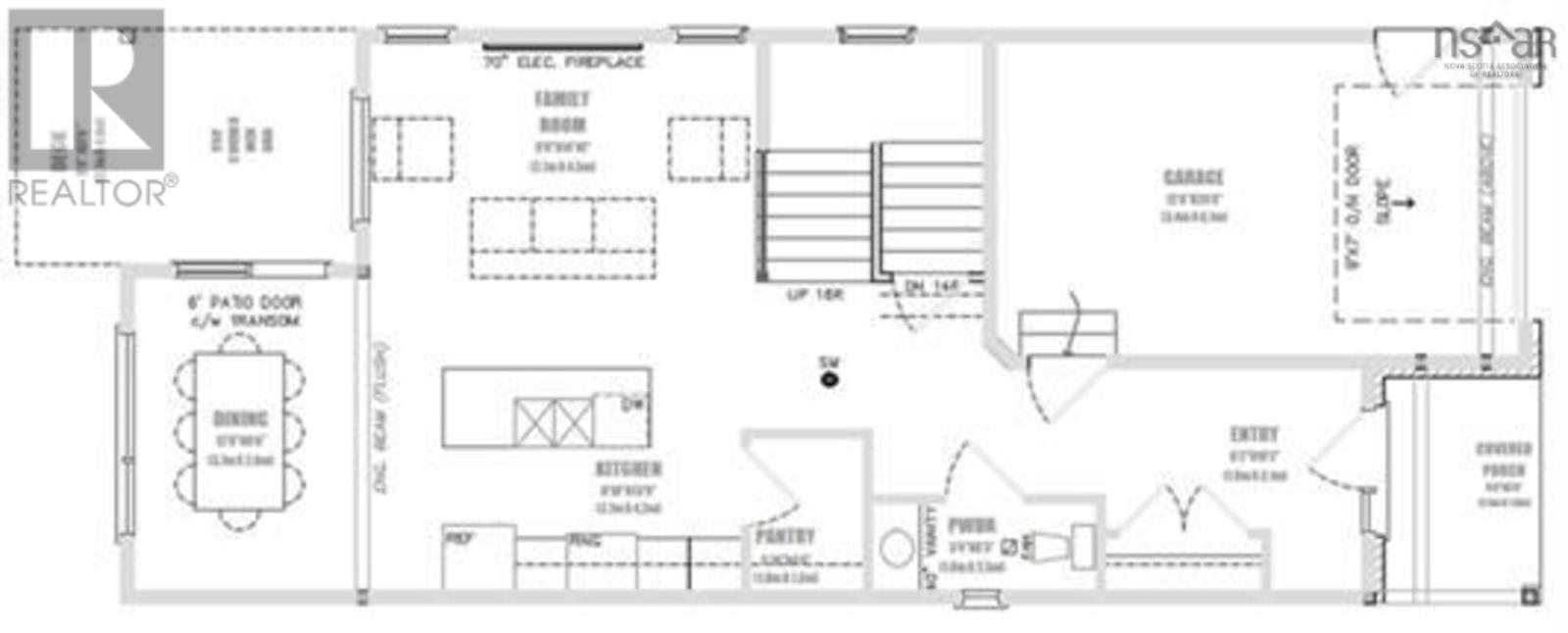
Main Level Foyer 6.2 x 10.2
Main Level Bath (# Pieces 1-6) 2 pc
Main Level Living Room 9x14
Main Level Dining Room 12x8.6

Land

Acreage No
Land Amenities Park, Playground, Shopping
Landscape Features Landscaped
Sewer Municipal Sewage System
Size Irregular 0.1046
Size Total 0.1046 Ac
Size Total Text 0.1046 Ac

Parking

Garage
Paved Yard

https://www.realtor.ca/real-estate/29175116/lw13-206-lewis-drive-bedford-bedford

Contact Us

Contact us for more information

Generating Captcha

    Your Name *

    Your Email *

    Your Contact Number *

    Subject

    Your Message

    Thank you for contacting us, one of our colleagues will contact you shortly. Thank you.

    Lakeridge Property International

    close-link