Search a Street, City, Province, RP Number or MLS® Number
 

Lot 46 - 43 Parkland Circle Quinte West, Ontario K8V 0R3

No favourites found!

 

$509,900

MLS® Number: X12758598
3 2 3

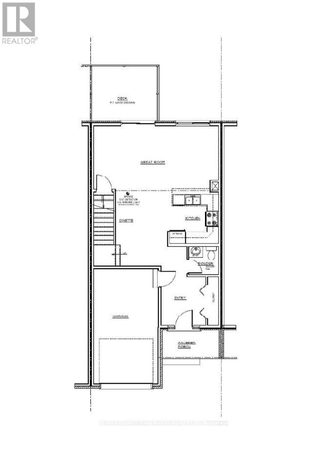
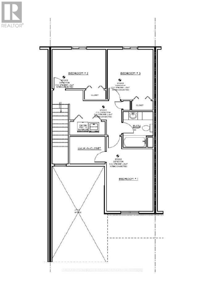
***Price includes the currently legislated HST New Housing Rebate of $24,000. Proposed Federal and Provincial rebate programs may provide approximately $37,422 in additional savings for eligible buyers, resulting in a potential adjusted purchase price of approximately $472,478.*** Built by Klemencic Homes, Welcome to the Cortland Model, a spacious 1,446 sq ft two-storey townhome thoughtfully designed with modern family living in mind, located in Phase 3 of Hillside Meadows - Parkland Circle. Striking brick and stone exterior details paired with sleek composite finishes create elegant curb appeal. Step inside to a bright, spacious foyer with a large closet, leading into an open-concept, carpet-free main floor. The stylish kitchen flows seamlessly into the dining area and generous great room, complete with a walk-out to the deck, ideal for entertaining or relaxing. A convenient 2-piece powder room and interior access to the attached garage complete this level. Upstairs, you'll find three well-appointed bedrooms and a full 4-piece bath. The primary bedroom features a walk-in closet, while the second-floor laundry closet adds everyday convenience. Interior selections are the choice of the buyer, allowing you to personalize the home to suit your style. The unfinished lower level offers excellent future potential for a recreation room, storage area, 2-piece bath, and utility room. Ideally located in the west end, close to Highway 401, elementary and secondary schools, shopping plazas, restaurants, Tim Hortons, Walmart, medical and dental offices, and a wide range of retail and services. Occupancy anticipated mid-June 2026. Backed by a 7-year Tarion Warranty. Model home available to view. (id:59126)

Property Details

MLS® Number X12758598
Property Type Single Family
Community Name Murray Ward
Amenities Near By Golf Nearby, Hospital, Park, Schools, Place Of Worship
Community Features School Bus
Parking Space Total 3
Structure Deck

Building

Bathroom Total 2
Bedrooms Above Ground 3
Bedrooms Total 3
Age New Building
Basement Development Unfinished
Basement Type Full (unfinished)
Construction Style Attachment Attached
Cooling Type Central Air Conditioning
Exterior Finish Brick, Stone
Foundation Type Poured Concrete
Half Bath Total 1
Heating Fuel Natural Gas
Heating Type Forced Air
Stories Total 2
Size Interior 1,100 - 1,500 Ft2
Type Row / Townhouse
Utility Water Municipal Water

Rooms

Level Type Dimensions
Second Level Primary Bedroom 4.16 m x 3.07 m
Second Level Bedroom 2 3.57 m x 3 m
Second Level Bedroom 3 3.35 m x 3.04 m
Main Level Kitchen 5.53 m x 2.84 m
Main Level Great Room 6.7 m x 3.45 m

Land

Acreage No
Land Amenities Golf Nearby, Hospital, Park, Schools, Place Of Worship
Sewer Sanitary Sewer
Size Depth 108 Ft ,4 In
Size Frontage 23 Ft ,1 In
Size Irregular 23.1 X 108.4 Ft
Size Total Text 23.1 X 108.4 Ft
Zoning Description R3-8

Parking

Attached Garage
Garage

Utilities

Cable Available
Electricity Installed
Sewer Installed

https://www.realtor.ca/real-estate/29324344/lot-46-43-parkland-circle-quinte-west-murray-ward-murray-ward

Contact Us

Contact us for more information

Generating Captcha

    Your Name *

    Your Email *

    Your Contact Number *

    Subject

    Your Message

    Thank you for contacting us, one of our colleagues will contact you shortly. Thank you.

    Lakeridge Property International

    close-link