Search a Street, City, Province, RP Number or MLS® Number
 

B, 11402 100 Street Grande Prairie, Alberta T8V 2N5

No favourites found!

 

$3,500 Monthly

MLS® Number: A2187382
6

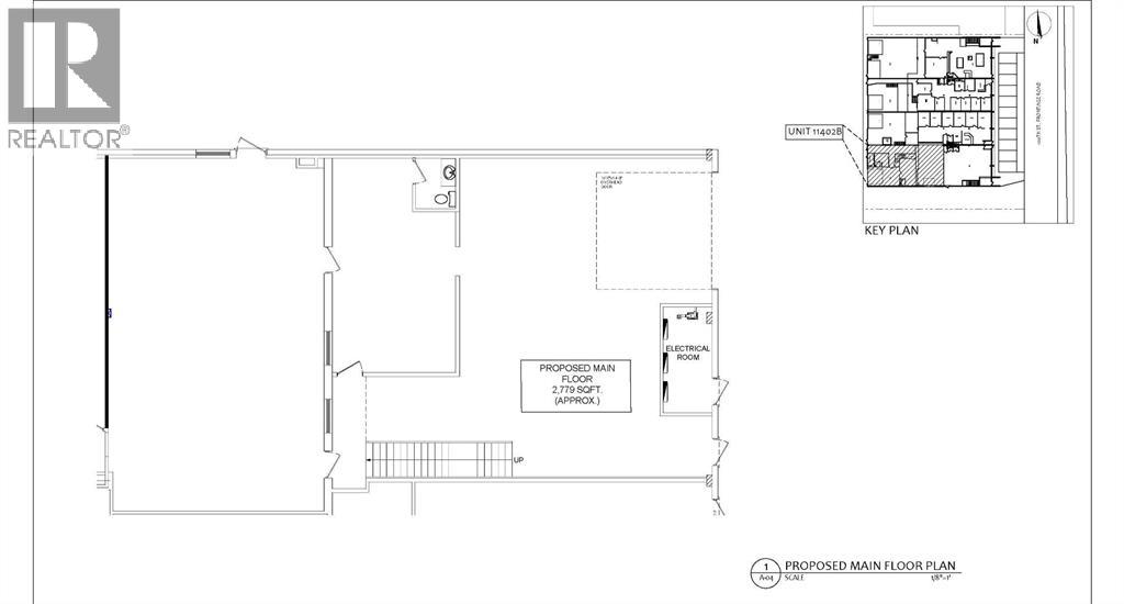
Commercial warehouse Conveniently Located!This versatile property offers 2,779 sq. ft. of main floor shop and show room/storage space with a 467 sq ft mezzanine. Mezzanine is fully developed and could be converted to more offices if needed. Located on 100 Street, offering excellent exposure for your business. The shop is equipped with a 14' x 14' overhead door allowing for functional use . Base rent is $3,500.00 per month, with a triple net charge of $7.16 per sq. ft plus utilities.Contact a Commercial REALTOR today to schedule a viewing. (id:59126)

Property Details

MLS® Number A2187382
Property Type Retail
Community Name Avondale
Parking Space Total 6
Plan 2417tr
Total Buildings 1

Building

Constructed Date 1980
Exterior Finish Brick
Foundation Type Poured Concrete
Heating Fuel Natural Gas
Heating Type Forced Air
Size Exterior 3246 Sqft
Size Interior 3,246 Ft2
Total Finished Area 3246 Sqft
Type Retail
Utility Water Municipal Water

Land

Acreage No
Sewer Municipal Sewage System
Size Total Text Unknown
Zoning Description Ca

https://www.realtor.ca/real-estate/27797383/b-11402-100-street-grande-prairie-avondale

Contact Us

Contact us for more information

Generating Captcha

    Your Name *

    Your Email *

    Your Contact Number *

    Subject

    Your Message

    Thank you for contacting us, one of our colleagues will contact you shortly. Thank you.

    Lakeridge Property International

    close-link