Search a Street, City, Province, RP Number or MLS® Number
 

958 Highland Street Saugeen Shores, Ontario N0H 2C2

No favourites found!

 

$799,900

MLS® Number: X12682612
4 3 5

Discover the perfect setting for your family in this expansive home, ideally situated in a desirable Port Elgin neighbourhood. Built in 2004, this residence combines timeless comfort with modern features, including a durable steel roof, an attached garage, and a fully fenced backyard. Step inside the main level to find an open-concept design that's both inviting and functional. The vaulted ceilings create an airy atmosphere, while the gas fireplace makes the living room a comfortable gathering spot. The kitchen is a standout with beautiful cherry and maple cabinets, handcrafted by Hutterites, and flows seamlessly into the dining area. From here, oversized patio doors lead out to a raised deck, perfect for summer barbecues. The main floor provides ample living space with three large bedrooms, a four-piece bathroom, and a dedicated laundry room. The primary suite is a private retreat, offering a spacious walk-in closet and a recently renovated ensuite with a soaker tub and separate shower. The fully finished lower level is a bonus, providing a large recreation room, a guest bedroom, and a three-piece bathroom. Two additional rooms on the lower level, currently set up as an office and a craft space with built-in storage, offer incredible flexibility and could easily be converted into extra bedrooms to accommodate a growing family. This isn't just a house; it's the home you've been waiting for, designed for comfort, space, and a lifetime of memories. (id:59126)

Property Details

MLS® Number X12682612
Property Type Single Family
Community Name Saugeen Shores
Amenities Near By Beach, Park, Marina, Place Of Worship
Community Features Community Centre
Equipment Type Water Heater
Features Carpet Free
Parking Space Total 5
Rental Equipment Type Water Heater
Structure Deck, Shed

Building

Bathroom Total 3
Bedrooms Above Ground 3
Bedrooms Below Ground 1
Bedrooms Total 4
Age 16 To 30 Years
Amenities Fireplace(s)
Appliances Central Vacuum, Dishwasher, Dryer, Stove, Washer, Refrigerator
Architectural Style Raised Bungalow
Basement Development Finished
Basement Type Full (finished)
Construction Style Attachment Detached
Cooling Type Central Air Conditioning
Exterior Finish Brick Veneer
Fireplace Present Yes
Fireplace Total 2
Foundation Type Poured Concrete
Heating Fuel Natural Gas
Heating Type Forced Air
Stories Total 1
Size Interior 1,500 - 2,000 Ft2
Type House
Utility Water Municipal Water

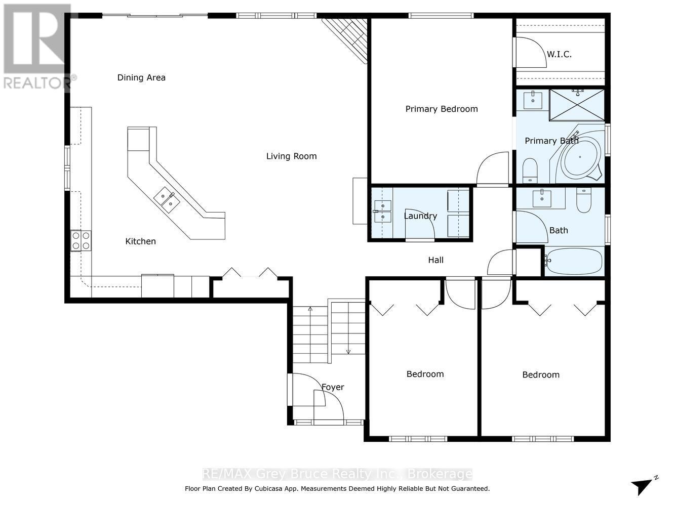
Rooms

Level Type Dimensions
Lower Level Recreational, Games Room 7.86 m x 10.05 m
Lower Level Office 3.66 m x 3.35 m
Lower Level Bedroom 3.66 m x 3.35 m
Lower Level Bathroom 2.75 m x 1.5 m
Lower Level Study 3.98 m x 5.97 m
Lower Level Utility Room 2.76 m x 3.11 m
Main Level Kitchen 4.86 m x 4.45 m
Main Level Dining Room 2.91 m x 3.89 m
Main Level Living Room 7.18 m x 4.38 m
Main Level Bedroom 4.34 m x 3.01 m
Main Level Bedroom 4.34 m x 3.44 m
Main Level Bathroom 2.48 m x 2.47 m
Main Level Bedroom 4.6 m x 3.93 m
Main Level Bathroom 2.63 m x 2.47 m
Main Level Laundry Room 1.42 m x 2.73 m
Ground Level Foyer 3.91 m x 2.01 m

Land

Acreage No
Land Amenities Beach, Park, Marina, Place Of Worship
Sewer Sanitary Sewer
Size Depth 140 Ft
Size Frontage 62 Ft
Size Irregular 62 X 140 Ft
Size Total Text 62 X 140 Ft|under 1/2 Acre
Zoning Description R1 - Residential First Density

Parking

Attached Garage
Garage

https://www.realtor.ca/real-estate/29236163/958-highland-street-saugeen-shores-saugeen-shores

Contact Us

Contact us for more information

Generating Captcha

    Your Name *

    Your Email *

    Your Contact Number *

    Subject

    Your Message

    Thank you for contacting us, one of our colleagues will contact you shortly. Thank you.

    Lakeridge Property International

    close-link