Search a Street, City, Province, RP Number or MLS® Number
 

89 Trenton Drive Paradise, Newfoundland & Labrador A1L 4B7

No favourites found!

 

$579,900

MLS® Number: 1295345
2 2

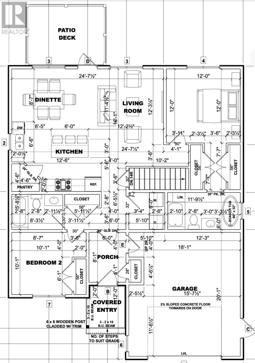
Perched majestically overlooking the serene waters of Octagon Pond, and steps from the walking trail this stunning contemporary bungalow on 89 Trenton Drive in Paradise's prestigious new Emerald Ridge subdivision. Wake each morning to shimmering water views of Octagon Pond and end your day watching the sunset paint the pond in golden hues from your elevated back patio. Open-concept main floor where natural light pours through strategically placed windows. The heart of this 2-bedroom sanctuary features a kitchen anchored by a substantial island—perfect for both entertaining and everyday family gatherings. The adjoining dining space flows seamlessly to a raised patio, blurring the boundary between indoor comfort and outdoor tranquillity. The basement will be wide open, featuring an opportunity for future development of a huge recreation room, bathroom, storage, and a third bedroom. The exterior will feature a covered front deck, a double-paved driveway, and front landscaping included. For buyers looking to downsize of a large property but still enjoy the outdoors and nature, this is your home. Generous allowances for kitchen, cabinets, flooring and lighting and a single head mini split heat pump are included, and there will be an 8-year LUX New Home Warranty. The purchase price includes HST with a rebate credited back to the builder. (id:59126)

Property Details

MLS® Number 1295345
Property Type Single Family
View Type View

Building

Bathroom Total 2
Bedrooms Above Ground 2
Bedrooms Total 2
Architectural Style 2 Level
Constructed Date 2026
Construction Style Attachment Detached
Cooling Type Air Exchanger
Exterior Finish Vinyl Siding
Flooring Type Laminate
Foundation Type Concrete
Heating Fuel Electric
Heating Type Baseboard Heaters, Mini-split
Stories Total 2
Size Interior 2,420 Ft2
Type House
Utility Water Municipal Water

Rooms

Level Type Dimensions
Main Level Bedroom 10.1x11.1
Main Level Primary Bedroom 12x12
Main Level Ensuite 4pc
Main Level Laundry Room Measurements not available
Main Level Bath (# Pieces 1-6) 3pc
Main Level Living Room 12x24.7
Main Level Dining Room 6.0x8.7
Main Level Kitchen 12.6x6.7

Land

Acreage No
Sewer Municipal Sewage System
Size Irregular 46x171x67.8x166.6
Size Total Text 46x171x67.8x166.6|4,051 - 7,250 Sqft
Zoning Description Res

Parking

Attached Garage

https://www.realtor.ca/real-estate/29484505/89-trenton-drive-paradise

Contact Us

Contact us for more information

Generating Captcha

    Your Name *

    Your Email *

    Your Contact Number *

    Subject

    Your Message

    Thank you for contacting us, one of our colleagues will contact you shortly. Thank you.

    Lakeridge Property International

    close-link