Search a Street, City, Province, RP Number or MLS® Number
 

80 Grindstone Drive, Kidston Estates Halifax, Nova Scotia B3R 0A6

No favourites found!

 

$634,900

MLS® Number: 202603903
4 4

Welcome to 80 Grindstone Drive in the desirable community of Kidston Estates. This well-maintained two-storey home offers functional living space, thoughtful updates, and a private backyard perfect for everyday living and entertaining. The main level features a spacious layout with a large kitchen complete with 7x3 island, professionally painted cabinetry, and a dining area that flows into the bright living room. A shiplap feature wall adds character, while the sliding patio door leads to a back deck with privacy walls overlooking the fully fenced backyard with gate and storage shed. The main level is completed with a convenient powder room. Upstairs youll find three bedrooms, including the large primary suite with a walk-in closet and ensuite featuring a tub/shower combination. A second full bathroom completed the upper level. The fully finished basement provides excellent additional living space with a large rec room offering room for a second family area and kids play space, a fourth bedroom ideal for guests or a home office, a third full bathroom, laundry area, and storage under the stairs. Additional upgrades throughout include 3 ductless mini-split heatpumps, new flooring on the main level and basement, a new hot water tank (2025), new stove and dishwasher (2025), and updated toilets in the powder room and primary ensuite (2026). Located in a quiet community just minutes from downtown Halifax, this home offers convenient access to schools, rec centre, grocery stores, and major highways, making everyday commuting and errands effortless. (id:59126)

Open House

This property has open houses!

April
26
Sunday
Starts at:

2:00 pm

Ends at:

4:00 pm

Property Details

MLS® Number 202603903
Property Type Single Family
Community Name Halifax
Amenities Near By Park, Playground, Public Transit, Shopping, Place Of Worship
Community Features Recreational Facilities, School Bus
Features Level
Structure Shed

Building

Bathroom Total 4
Bedrooms Above Ground 3
Bedrooms Below Ground 1
Bedrooms Total 4
Appliances Stove, Dishwasher, Washer/dryer Combo, Microwave Range Hood Combo, Refrigerator
Basement Development Finished
Basement Type Full (finished)
Constructed Date 2010
Construction Style Attachment Detached
Cooling Type Wall Unit, Heat Pump
Exterior Finish Vinyl
Flooring Type Laminate, Tile
Foundation Type Poured Concrete
Half Bath Total 1
Stories Total 2
Size Interior 2,100 Ft2
Total Finished Area 2100 Sqft
Type House
Utility Water Municipal Water

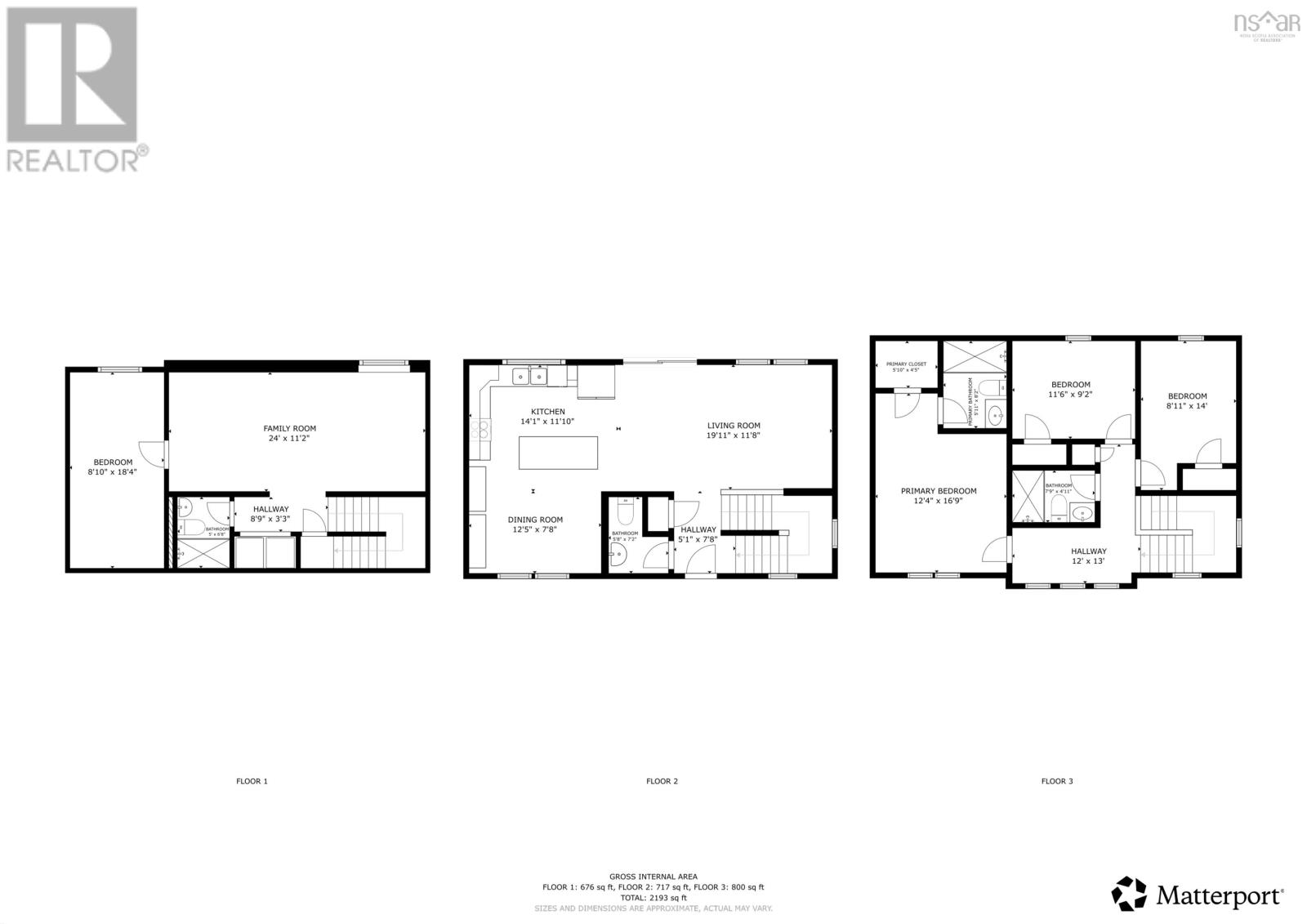
Rooms

Level Type Dimensions
Second Level Primary Bedroom 16..9 z 12..4 /50
Second Level Other (WIC)5..10 x 4..5 /na
Second Level Ensuite (# Pieces 2-6) 8..2 x 5..11 /na
Second Level Bedroom 11..6 x 9..2 /48
Second Level Bedroom 14. x 8..11 /48
Second Level Bath (# Pieces 1-6) 7..9 x 4..11 /48
Basement Family Room 24. x 11..2 /oc
Basement Bedroom 18..4 x 8..10 /oc
Basement Bath (# Pieces 1-6) 6..8 x 5. /39
Basement Laundry Room (Nook/Closet) /39
Basement Other (Storage) /oc
Main Level Living Room 19..11 x 11..8 /na
Main Level Kitchen 14..1 x 11..10 /na
Main Level Dining Room 12..5 x 7..8 /na
Main Level Bath (# Pieces 1-6) 7..2 x 5..8 /na
Main Level Other (Covered Deck)
Main Level Other (Deck)

Land

Acreage No
Land Amenities Park, Playground, Public Transit, Shopping, Place Of Worship
Landscape Features Landscaped
Sewer Municipal Sewage System
Size Irregular 0.1149
Size Total 0.1149 Ac
Size Total Text 0.1149 Ac

Parking

Paved Yard

https://www.realtor.ca/real-estate/29431787/80-grindstone-drive-kidston-estates-halifax-halifax

Contact Us

Contact us for more information

Generating Captcha

    Your Name *

    Your Email *

    Your Contact Number *

    Subject

    Your Message

    Thank you for contacting us, one of our colleagues will contact you shortly. Thank you.

    Lakeridge Property International

    close-link