Search a Street, City, Province, RP Number or MLS® Number
 

7225 Hudson Street Burnaby, British Columbia V6P 4K9

No favourites found!

 

$2,488,000

MLS® Number: R3098985
9 8

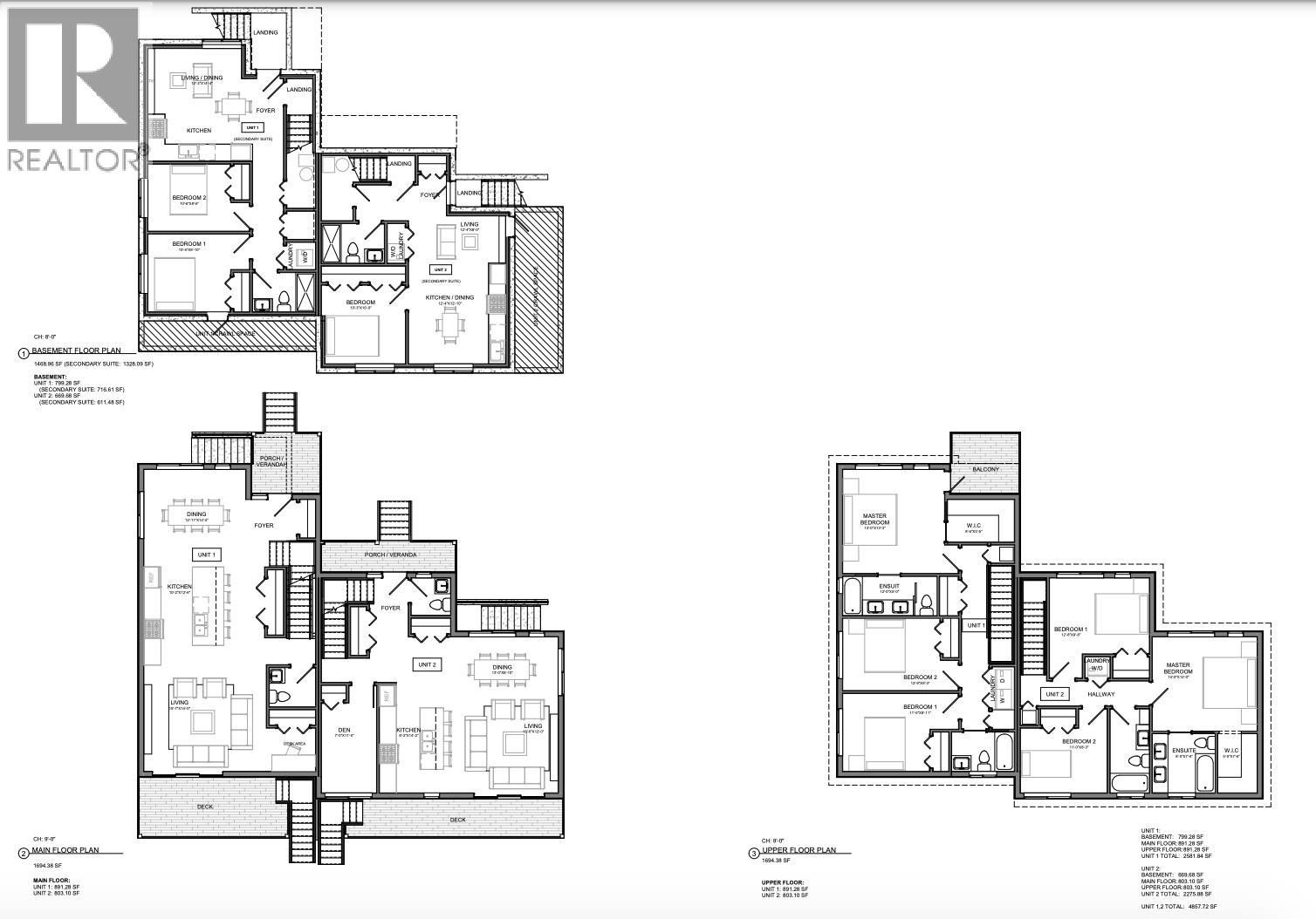
Attention developers! Rare opportunity to build in South Granville, one of Vancouver's most prestigious West Side neighborhoods. This 6,747 square ft level lot at 7225 lot B Hudson Street presents excellent development potential, allowing for a luxury duplex of approximately 4,500 square ft with detached garages, or the chance to design and build your custom dream home. Ideally positioned near top schools including Sir Winston Churchill Secondary School and Magee Secondary School, plus parks, shopping, and convenient transit. A rare opportunity to secure a prime building lot in a highly desirable West Side location. Contact us for the full information package with floorplans (id:59126)

Property Details

MLS® Number R3098985
Property Type Single Family
Amenities Near By Golf Course, Recreation, Shopping
Features Central Location

Building

Bathroom Total 8
Bedrooms Total 9
Appliances All
Architectural Style 2 Level
Basement Development Unknown
Basement Features Unknown
Basement Type Full (unknown)
Constructed Date 2026
Construction Style Attachment Detached
Cooling Type Air Conditioned
Heating Type Forced Air, Radiant Heat
Size Interior 4,858 Ft2
Type House

Land

Acreage No
Land Amenities Golf Course, Recreation, Shopping
Size Frontage 100 Ft
Size Irregular 6747
Size Total 6747 Sqft
Size Total Text 6747 Sqft

Parking

Garage 1

https://www.realtor.ca/real-estate/29459646/7225-hudson-street-burnaby

Contact Us

Contact us for more information

Generating Captcha

    Your Name *

    Your Email *

    Your Contact Number *

    Subject

    Your Message

    Thank you for contacting us, one of our colleagues will contact you shortly. Thank you.

    Lakeridge Property International

    close-link