Search a Street, City, Province, RP Number or MLS® Number
 

7, 828 8 Avenue NE Calgary, Alberta T2E 9E2

No favourites found!

 

$500,000

Maintenance, Common Area Maintenance, Insurance, Reserve Fund Contributions

$299 Monthly

MLS® Number: A2287809

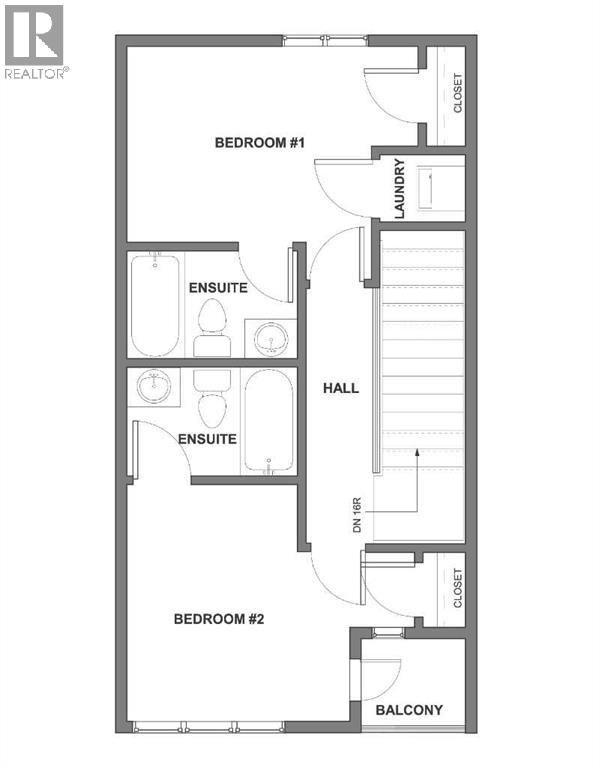
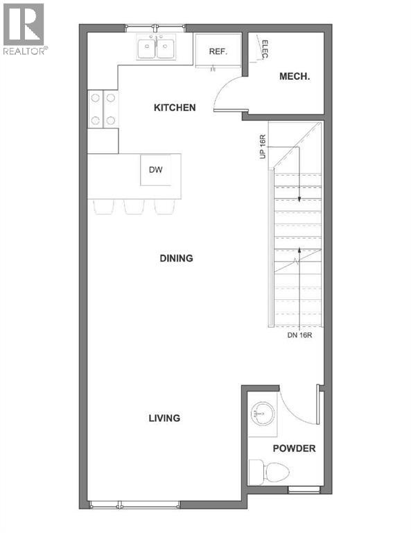
*EFFECTIVE PRICE OF JUST $476,190 FOR FIRST TIME BUYERS WHO QUALIFY FOR THE NEW GST REBATE!* Incredible opportunity for a BRAND NEW, MOVE-IN READY TOWNHOME IN RENFREW! Perfect for a savvy investor, this townhome project is AIRBNB FRIENDLY, a rare feature for a townhome! This upper-level unit boasts over 1,000 sq ft, with 2 beds, 2.5 baths, plus a single detached garage. The main floor showcases luxury vinyl plank flooring, and an open-concept layout with a central kitchen boasting tiled backsplash, quartz countertops, bar seating, and stainless steel Samsung appliances, including a French-door refrigerator and ceramic top stove. The adjoining living and dining areas provide a comfortable setting for meals or unwinding after a long day, while a stylish 2-piece powder room completes the main level. Upstairs, 2 spacious bedrooms, each with a 4-piece ensuite, await. Both bathrooms feature tiled flooring, quartz vanities, and a tub/shower combo. The spacious primary bedroom features a private balcony overlooking the residential street and downtown. Completing this upper level is a laundry closet with a stacked washer/dryer. Stylish and durable, the exterior features Hardie Board and Smart Board detailing, as well as brushed concrete steps and walks. Located in the heart of Renfrew, a tranquil inner-city community filled with tree-lined streets and green spaces. Enjoy being steps from ample parks, playing fields, and the Renfrew Community Association, which includes a playground and seasonal ice rink. Plus, enjoy being just minutes from the vibrant dining and shopping scene of neighbouring Bridgeland, and offering quick access to Calgary’s downtown core and major roadways, this townhome project blends inner-city convenience with the ease of a lock-and-leave lifestyle. *Interior photos are images of the show home, this unit may vary slightly *Buyers must qualify for the GST rebate program, enquire for details. *VISIT MULTIMEDIA LINK FOR FULL DETAILS & FLOORPLANS FOR ALL AV AILABLE UNITS!* (id:59126)

Property Details

MLS® Number A2287809
Property Type Single Family
Community Name Renfrew
Amenities Near By Park, Playground, Recreation Nearby, Schools, Shopping
Features Closet Organizers
Parking Space Total 1
Plan 2610344

Building

Bathroom Total 3
Bedrooms Above Ground 2
Bedrooms Total 2
Appliances Refrigerator, Dishwasher, Stove, Microwave, Washer/dryer Stack-up
Basement Type None
Constructed Date 2026
Construction Material Wood Frame
Construction Style Attachment Attached
Cooling Type See Remarks
Flooring Type Tile, Vinyl Plank
Foundation Type Poured Concrete
Half Bath Total 1
Heating Type Forced Air
Stories Total 2
Size Interior 1,087 Ft2
Total Finished Area 1086.52 Sqft
Type Row / Townhouse

Rooms

Level Type Dimensions
Second Level Living Room 11.33 Ft x 10.25 Ft
Second Level Kitchen 10.92 Ft x 10.33 Ft
Second Level Dining Room 8.50 Ft x 8.17 Ft
Second Level 2pc Bathroom .00 Ft x .00 Ft
Third Level Primary Bedroom 13.33 Ft x 10.25 Ft
Third Level Bedroom 13.25 Ft x 9.33 Ft
Third Level 4pc Bathroom .00 Ft x .00 Ft
Third Level 4pc Bathroom Measurements not available

Land

Acreage No
Fence Type Not Fenced
Land Amenities Park, Playground, Recreation Nearby, Schools, Shopping
Size Total Text Unknown
Zoning Description H-go

Parking

Detached Garage 1

https://www.realtor.ca/real-estate/29383056/7-828-8-avenue-ne-calgary-renfrew

Contact Us

Contact us for more information

Generating Captcha

    Your Name *

    Your Email *

    Your Contact Number *

    Subject

    Your Message

    Thank you for contacting us, one of our colleagues will contact you shortly. Thank you.

    Lakeridge Property International

    close-link