Search a Street, City, Province, RP Number or MLS® Number
 

6768 Heathwoods Avenue London South, Ontario N6P 0M2

No favourites found!

 

$959,900

MLS® Number: X12803936
4 3 4

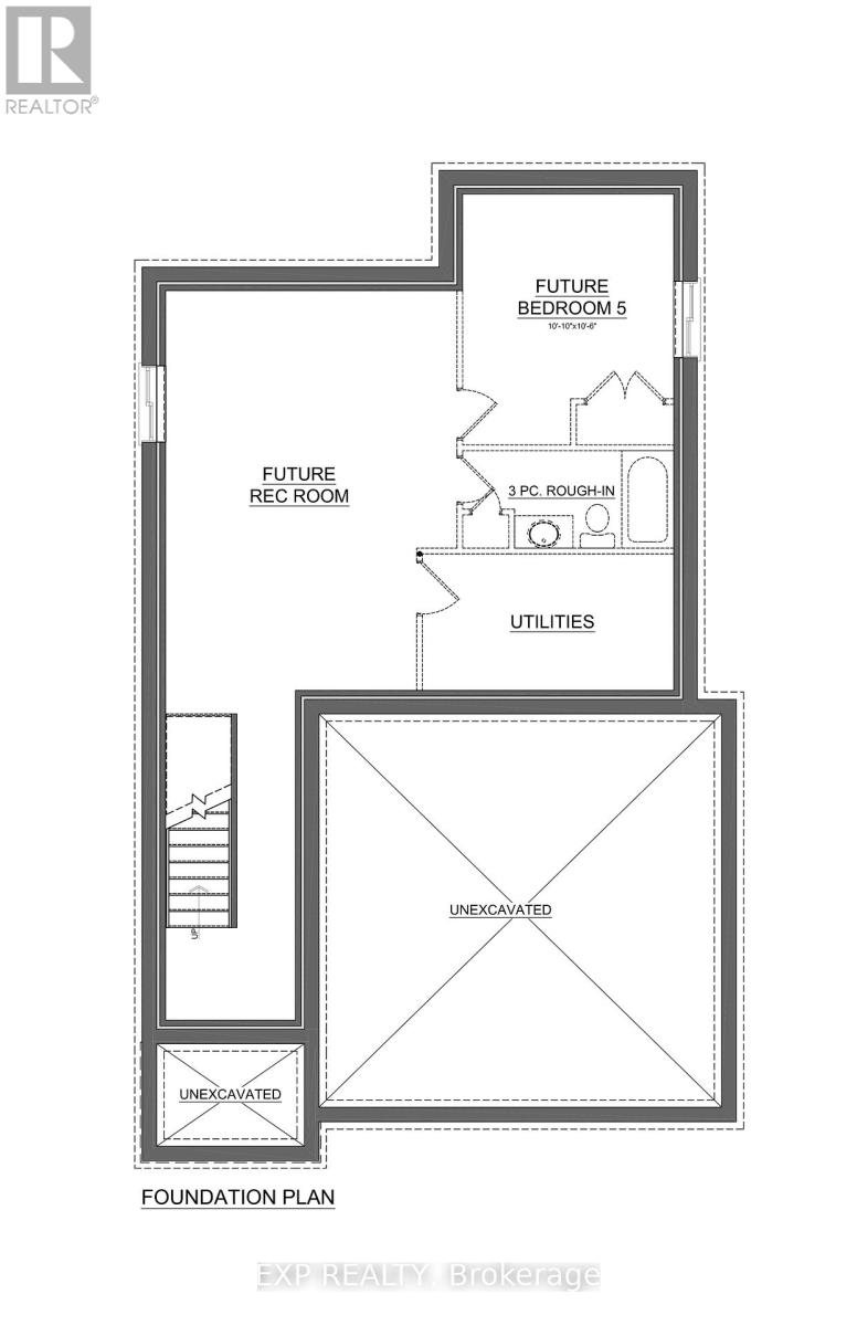
To be built by Built by Johnstone Homes, Open Houses held at Model located at 6875 Heathwoods. The Ellington is a to-be-built 4-bedroom, 3-bath detached home offering approximately 1,979 sq. ft. of finished space on a 48-ft lot backing onto mature trees in southwest London's desirable Heathwoods community. Additional 40', 52' and 58' lots are available, including quiet south-facing options with look-out or walk-out basements. Builder-finished basements and decks can also be arranged, with site plans and floor plans available upon request and two finished model homes open for viewing weekends.Inside, nine-foot ceilings, engineered hardwood in main living areas, and generous finish allowances create a modern, adaptable interior. A vaulted dining ceiling enhances the open-concept layout, ideal for everyday living and entertaining. Upstairs, four spacious bedrooms include a primary suite with double vanity and glass-tiled shower, while an unfinished basement with 3-piece rough-in offers future potential. Located near Colonel Talbot amenities, Lambeth Community Centre, and quick 401/402 access. (id:59126)

Open House

This property has open houses!

April
25
Saturday
Starts at:

1:00 pm

Ends at:

4:00 pm

April
26
Sunday
Starts at:

1:00 pm

Ends at:

4:00 pm

May
2
Saturday
Starts at:

1:00 pm

Ends at:

4:00 pm

May
3
Sunday
Starts at:

1:00 pm

Ends at:

4:00 pm

Property Details

MLS® Number X12803936
Property Type Single Family
Community Name South V
Equipment Type Water Heater - Tankless, Water Heater
Features Irregular Lot Size, Sump Pump
Parking Space Total 4
Rental Equipment Type Water Heater - Tankless, Water Heater

Building

Bathroom Total 3
Bedrooms Above Ground 4
Bedrooms Total 4
Age New Building
Appliances Water Meter
Basement Development Unfinished
Basement Type Full (unfinished)
Construction Style Attachment Detached
Cooling Type Central Air Conditioning
Exterior Finish Brick, Vinyl Siding
Foundation Type Poured Concrete
Half Bath Total 1
Heating Fuel Natural Gas
Heating Type Forced Air
Stories Total 2
Size Interior 1,500 - 2,000 Ft2
Type House
Utility Water Municipal Water

Rooms

Level Type Dimensions
Second Level Primary Bedroom 5.79 m x 3.94 m
Second Level Bedroom 4.09 m x 3.35 m
Second Level Bedroom 3.43 m x 2.79 m
Second Level Bedroom 2.74 m x 3.2 m
Main Level Kitchen 3.61 m x 3.68 m
Main Level Dining Room 3.68 m x 2.79 m
Main Level Great Room 6.65 m x 4.65 m

Land

Acreage No
Sewer Sanitary Sewer
Size Depth 77 Ft ,7 In
Size Frontage 48 Ft ,3 In
Size Irregular 48.3 X 77.6 Ft
Size Total Text 48.3 X 77.6 Ft|under 1/2 Acre
Zoning Description R1-3

Parking

Attached Garage
Garage

https://www.realtor.ca/real-estate/29380185/6768-heathwoods-avenue-london-south-south-v-south-v

Contact Us

Contact us for more information

Generating Captcha

    Your Name *

    Your Email *

    Your Contact Number *

    Subject

    Your Message

    Thank you for contacting us, one of our colleagues will contact you shortly. Thank you.

    Lakeridge Property International

    close-link