Search a Street, City, Province, RP Number or MLS® Number
 

65 Meadow Lane Wasaga Beach, Ontario L9Z 0A3

No favourites found!

 

$439,900

MLS® Number: S12818132

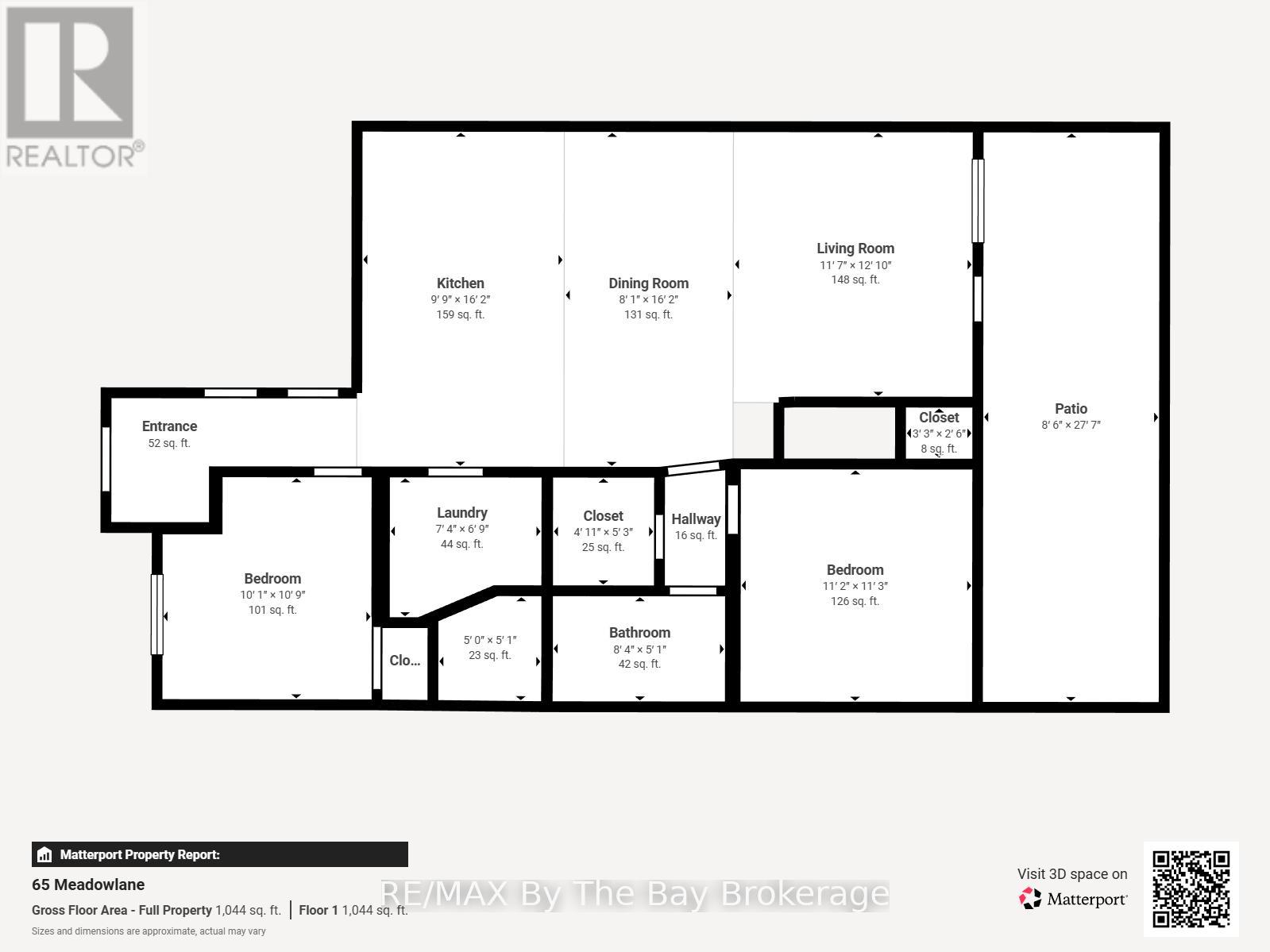
Welcome to 65 Meadow Lane! Located in the desirable 55+ community of Wasaga Meadows, this home offers a relaxed lifestyle just minutes from the beach, shopping, dining, golf, and scenic walking trails. Step inside from the covered front porch or through the single-car garage, which opens into a bright front hall enhanced by a skylight. The main living space features an open-concept kitchen, dining, and living area complete with a gas fireplace, ceiling fan, pot lights, and a walkout to a covered patio with a screened sitting area and gas BBQ hookup. The kitchen includes a functional island with storage as well as a built-in desk. The home also features new flooring throughout, adding a fresh and updated feel. There are two spacious bedrooms, including a primary bedroom with two closets, a 4-piece main bath, and a separate laundry room with a sink and additional storage. Residents also have the option to enjoy the amenities at Country Life Resort on Theme Park Drive for an additional annual fee of approximately $110 per year, which includes access to the indoor and outdoor pools. Estimated monthly costs for the new owner are as follows: land lease rent $800, lot taxes $50.99, and structure taxes $115.64. (id:59126)

Property Details

MLS® Number S12818132
Property Type Single Family
Community Name Wasaga Beach
Amenities Near By Golf Nearby, Beach
Parking Space Total 2

Building

Bathroom Total 1
Bedrooms Above Ground 2
Bedrooms Total 2
Age 16 To 30 Years
Amenities Fireplace(s)
Appliances Water Softener, Dishwasher, Dryer, Garage Door Opener, Water Heater, Stove, Washer, Refrigerator
Architectural Style Bungalow
Basement Type None
Construction Style Attachment Attached
Cooling Type Central Air Conditioning
Exterior Finish Brick
Fire Protection Smoke Detectors
Fireplace Present Yes
Fireplace Total 1
Foundation Type Poured Concrete
Heating Fuel Natural Gas
Heating Type Forced Air
Stories Total 1
Size Interior 700 - 1,100 Ft2
Type Row / Townhouse
Utility Water Municipal Water

Rooms

Level Type Dimensions
Main Level Sunroom 8.44 m x 2.62 m
Main Level Kitchen 3.02 m x 4.94 m
Main Level Dining Room 2.47 m x 4.94 m
Main Level Living Room 3.56 m x 3.68 m
Main Level Bathroom 2.56 m x 1.55 m
Main Level Laundry Room 2.25 m x 2.1 m
Main Level Bedroom 3.08 m x 3.32 m
Main Level Primary Bedroom 3.41 m x 3.44 m

Land

Acreage No
Land Amenities Golf Nearby, Beach
Sewer Sanitary Sewer
Size Total Text Under 1/2 Acre
Zoning Description R3

Parking

Attached Garage
Garage

Utilities

Wireless Available

https://www.realtor.ca/real-estate/29396747/65-meadow-lane-wasaga-beach-wasaga-beach

Contact Us

Contact us for more information

Generating Captcha

    Your Name *

    Your Email *

    Your Contact Number *

    Subject

    Your Message

    Thank you for contacting us, one of our colleagues will contact you shortly. Thank you.

    Lakeridge Property International

    close-link