Search a Street, City, Province, RP Number or MLS® Number
 

646 Davis Street Grand-Sault/grand Falls, New Brunswick E3Z 1B8

No favourites found!

 

$399,000

MLS® Number: NB129970
4 4

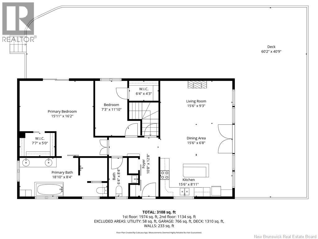
Beautifully updated 4-bedroom, 3.5-bath home with stunning city views offering 2,641 sq. ft. of finished living space with excellent potential for an in-law suite or separate apartment. The main level offers 2 bedrooms and 1.5 bathrooms, featuring an open-concept layout with a newly added kitchen island and elegant ceramic flooring throughout. A cathedral ceiling and expansive windows fill the space with abundant natural light, creating a bright and inviting atmosphere. The fully finished walk-out basement includes 2 additional bedrooms, 2 full bathrooms, and a large family roomperfect for extended family or rental options. In addition, there is a separate 27' x 14' room offering excellent potential to be converted into an apartment or private living space. Many major upgrades have been completed, including a new Mitsubishi ducted central air system, new air exchanger, 2 new bathrooms in the basement, and a new garage addition with enclosed storage space finished with pvc. Enjoy summer days in the newly installed inground heated saltwater pool with surrounding fence, offering privacy and outdoor enjoyment. The property also features a 57 x 14 finished attached garage with a connected 57 x 6 storage space, providing ample room for vehicles and storage. Thoughtfully upgraded, this home is move-in ready and offers exceptional flexibility for a growing or multi-generational family. (id:59126)

Open House

This property has open houses!

May
9
Saturday
Starts at:

1:00 pm

Ends at:

3:00 pm

Property Details

MLS® Number NB129970
Property Type Single Family
Neigbourhood Grand-Sault/Grand Falls
Features Cul-de-sac
Pool Type Inground Pool

Building

Bathroom Total 4
Bedrooms Above Ground 2
Bedrooms Below Ground 2
Bedrooms Total 4
Architectural Style Bungalow
Constructed Date 1975
Cooling Type Central Air Conditioning, Air Conditioned, Air Exchanger
Exterior Finish Stone, Vinyl
Flooring Type Ceramic, Laminate, Linoleum
Foundation Type Concrete
Half Bath Total 1
Heating Fuel Electric
Stories Total 1
Size Interior 2,641 Ft2
Total Finished Area 2641 Sqft
Type House
Utility Water Municipal Water

Rooms

Level Type Dimensions
Basement Bedroom 17'1'' x 14'8''
Basement Great Room 27'6'' x 14'8''
Basement Foyer 14'9'' x 7'3''
Basement Bedroom 16' x 9'7''
Basement 4pc Bathroom 23'1'' x 6'9''
Basement Family Room 23'3'' x 18'1''
Main Level Foyer 9' x 5'6''
Main Level Other 19'2'' x 8'6''
Main Level 2pc Bathroom 8'5'' x 4'6''
Main Level Bedroom 12'1'' x 9'6''
Main Level Primary Bedroom 16'4'' x 16'3''
Main Level Living Room 15'9'' x 12'5''
Main Level Kitchen/dining Room 15'9'' x 11'5''

Land

Access Type Year-round Access, Public Road
Acreage No
Landscape Features Landscaped
Sewer Municipal Sewage System
Size Irregular 2955
Size Total 2955 M2
Size Total Text 2955 M2

Parking

Attached Garage
Garage

https://www.realtor.ca/real-estate/29103047/646-davis-street-grand-saultgrand-falls

Contact Us

Contact us for more information

Generating Captcha

    Your Name *

    Your Email *

    Your Contact Number *

    Subject

    Your Message

    Thank you for contacting us, one of our colleagues will contact you shortly. Thank you.

    Lakeridge Property International

    close-link