Search a Street, City, Province, RP Number or MLS® Number
 

5107, 5113, 5117 51 Avenue Berwyn, Alberta T0H 0E0

No favourites found!

 

$119,000

MLS® Number: A2269767
5 2 6

Opportunity awaits! Unique situation with one lot which includes 2 homes and has utility connections for 2 additional homes! This opportunity allows you to live in one home while the rent from the second home is paying your mortgage. You could also rent both homes and expand to 4 rental units. If you have been looking for an investment property with a high potential for immediate return with room to expand this could be a great fit! The main home has recently been repainted, the furnace has been refurbished, a new gas hot water tank has been installed, and so much more! This home has an open kitchen and living space with lots of additional storage in the addition. Much of the addition was previously heated and could easily be again with a few modifications. The second home (referred to as a suite in the photos section) offers a slightly different layout perfect for a small family or individual. It's been well kept throughout the years with upgrades to the windows, flooring, roof and more! A large porch has been added for additional storage and there is a nicely set up back deck. The home itself features 2 bedrooms and 1 bath room with an additional bonus space that would work well as a office or second living room. (id:59126)

Property Details

MLS® Number A2269767
Property Type Single Family
Amenities Near By Playground, Schools, Shopping
Features See Remarks, Back Lane
Parking Space Total 6
Plan 1090cl

Building

Bathroom Total 2
Bedrooms Above Ground 3
Bedrooms Below Ground 2
Bedrooms Total 5
Appliances Refrigerator, Dishwasher, Stove, Freezer, Washer & Dryer
Architectural Style Mobile Home
Basement Type None
Constructed Date 1974
Construction Style Attachment Detached
Cooling Type None
Exterior Finish Vinyl Siding
Flooring Type Laminate, Vinyl Plank
Foundation Type Block
Heating Fuel Natural Gas
Heating Type Forced Air
Stories Total 1
Size Interior 864 Ft2
Total Finished Area 864 Sqft
Type Manufactured Home

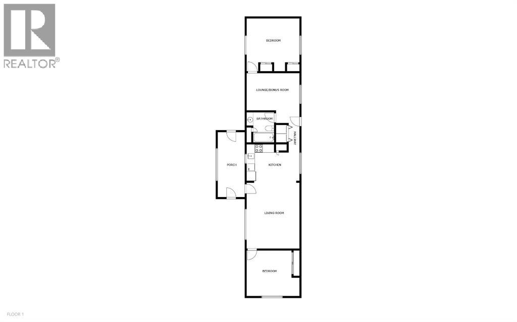
Rooms

Level Type Dimensions
Main Level Living Room 13.08 Ft x 16.83 Ft
Main Level Bedroom 9.83 Ft x 6.75 Ft
Main Level Primary Bedroom 13.08 Ft x 12.58 Ft
Main Level Pantry 9.25 Ft x 11.25 Ft
Main Level Eat In Kitchen 13.08 Ft x 11.00 Ft
Main Level Bedroom 9.83 Ft x 6.75 Ft
Main Level 4pc Bathroom 9.83 Ft x 7.17 Ft
Main Level Other 13.92 Ft x 19.58 Ft
Main Level Storage 20.00 Ft x 10.17 Ft
Unknown Bedroom 9.67 Ft x 13.33 Ft
Unknown 4pc Bathroom 6.92 Ft x 7.75 Ft
Unknown Living Room 13.33 Ft x 16.83 Ft
Unknown Bedroom 11.75 Ft x 13.33 Ft
Unknown Eat In Kitchen 13.33 Ft x 9.17 Ft
Unknown Bonus Room 13.33 Ft x 11.92 Ft

Land

Acreage No
Fence Type Not Fenced
Land Amenities Playground, Schools, Shopping
Landscape Features Landscaped, Lawn
Size Depth 36.57 M
Size Frontage 60.96 M
Size Irregular 2400.00
Size Total 2400 Sqft|0-4,050 Sqft
Size Total Text 2400 Sqft|0-4,050 Sqft
Zoning Description Mhp

Parking

Parking Pad

https://www.realtor.ca/real-estate/29111683/5107-5113-5117-51-avenue-berwyn

Contact Us

Contact us for more information

Generating Captcha

    Your Name *

    Your Email *

    Your Contact Number *

    Subject

    Your Message

    Thank you for contacting us, one of our colleagues will contact you shortly. Thank you.

    Lakeridge Property International

    close-link