Search a Street, City, Province, RP Number or MLS® Number
 

4807 S 50 Avenue Fort Nelson, British Columbia V0C 1R0

No favourites found!

 

$669,000

MLS® Number: C8071133

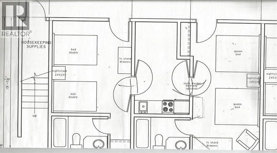
MIGHTY MOTEL! Built in 2003, owner-run and majorly maintained, this outstanding value is tucked away in plain view just off the World-Famous Alaska Highway. There is potential for multiple uses such as street retail with apartments overhead; bed and breakfast, or anything your imagination allows in a highway commercial zone. Perfectly and suitably built to house crews, with "pod-like" units. (2 self-contained bedroom units with a kitchen between. The kitchens could be shared or separately available to only one unit) 2-storeys, with enclosed outside stair-access and front balcony. All paved, centrally and conveniently located just steps from a laundromat and our local IGA grocery store. If there was ever an opportunity... this one's likely top of the list! (id:59126)

Business

Business Type Accommodation
Business Sub Type Hotel/motel

Property Details

MLS® Number C8071133
Property Type Business

Building

Constructed Date 2003
Cooling Type Central Air Conditioning
Size Interior 9,072 Ft2

Land

Acreage No
Size Irregular 0.61
Size Total 0.61 Ac
Size Total Text 0.61 Ac

Parking

Visitor Parking

https://www.realtor.ca/real-estate/28670399/4807-s-50-avenue-fort-nelson

Contact Us

Contact us for more information

Generating Captcha

    Your Name *

    Your Email *

    Your Contact Number *

    Subject

    Your Message

    Thank you for contacting us, one of our colleagues will contact you shortly. Thank you.

    Lakeridge Property International

    close-link