Search a Street, City, Province, RP Number or MLS® Number
 

43 Cobblehill Road Halton Hills, Ontario L7J 1P1

No favourites found!

 

$729,990

MLS® Number: W12893204

Lovingly cared for by the same family since the 1950s, this solid 1,700+ sq. ft. home, plus a 1,700 sq. ft. basement, is full of potential and set on a 66 ft. x 150 ft. lot. The décor reflects a time when homes were built with quality materials providing a great opportunity for renovators, investors, or buyers wanting to make a home their own. Located in a desirable family-friendly neighbourhood, it is close to schools, parks, shopping, and everyday conveniences.Inside, the home offers a functional layout with plenty of potential for updates and improvements. The large addition offers an open concept living room with a gas fireplace and a walk out to a covered screened sunroom/deck area and wheelchair ramp with views of the generous fenced back yard. Extra large windows provide lots of natural light. The side door gives you a separate entrance leading to the full sized basement, providing additional living space with two generously sized bedrooms and kitchenette for guests, extended family, or potential rental use. Additional updates include upgraded electrical wiring throughout with Décora plugs, ESA certification, a plug-in generator panel with standby hook-up, updated plumbing, forced-air gas furnace, central air conditioning, and an owned hot water heater. Enjoy the outdoors in the fenced backyard, perfect for entertaining, relaxing, or family gatherings. This family home offers great bones to renovate, update, modify, or potentially rebuild, complete with a detached one-car garage that is currently being used for storage. Ideally located within walking distance to schools, plazas, parks, trails, recreation centres, the Legion, and downtown shops, with convenient access to GO service, Fairy Lake, and Highway 401. Whether you are looking to renovate, add value, or create your dream home, this property offers endless possibilities and a strong foundation to build on. (id:59126)

Open House

This property has open houses!

May
24
Sunday
Starts at:

2:00 pm

Ends at:

4:00 pm

Property Details

MLS® Number W12893204
Property Type Single Family
Community Name 1045 - AC Acton
Amenities Near By Park, Place Of Worship, Schools
Features Wooded Area, Sloping, Partially Cleared, Wheelchair Access, Guest Suite
Parking Space Total 3
Structure Shed
View Type View

Building

Bathroom Total 3
Bedrooms Above Ground 2
Bedrooms Below Ground 2
Bedrooms Total 4
Age 51 To 99 Years
Amenities Fireplace(s)
Appliances Central Vacuum, Water Heater, Water Meter, Dryer, Stove, Washer, Window Coverings, Refrigerator
Architectural Style Bungalow
Basement Development Partially Finished
Basement Features Separate Entrance, Walk-up
Basement Type N/a, Full, N/a (partially Finished), N/a
Construction Style Attachment Detached
Cooling Type Central Air Conditioning
Exterior Finish Brick
Fireplace Present Yes
Fireplace Total 1
Foundation Type Block
Half Bath Total 2
Heating Fuel Natural Gas
Heating Type Forced Air
Stories Total 1
Size Interior 1,500 - 2,000 Ft2
Type House
Utility Power Generator
Utility Water Municipal Water

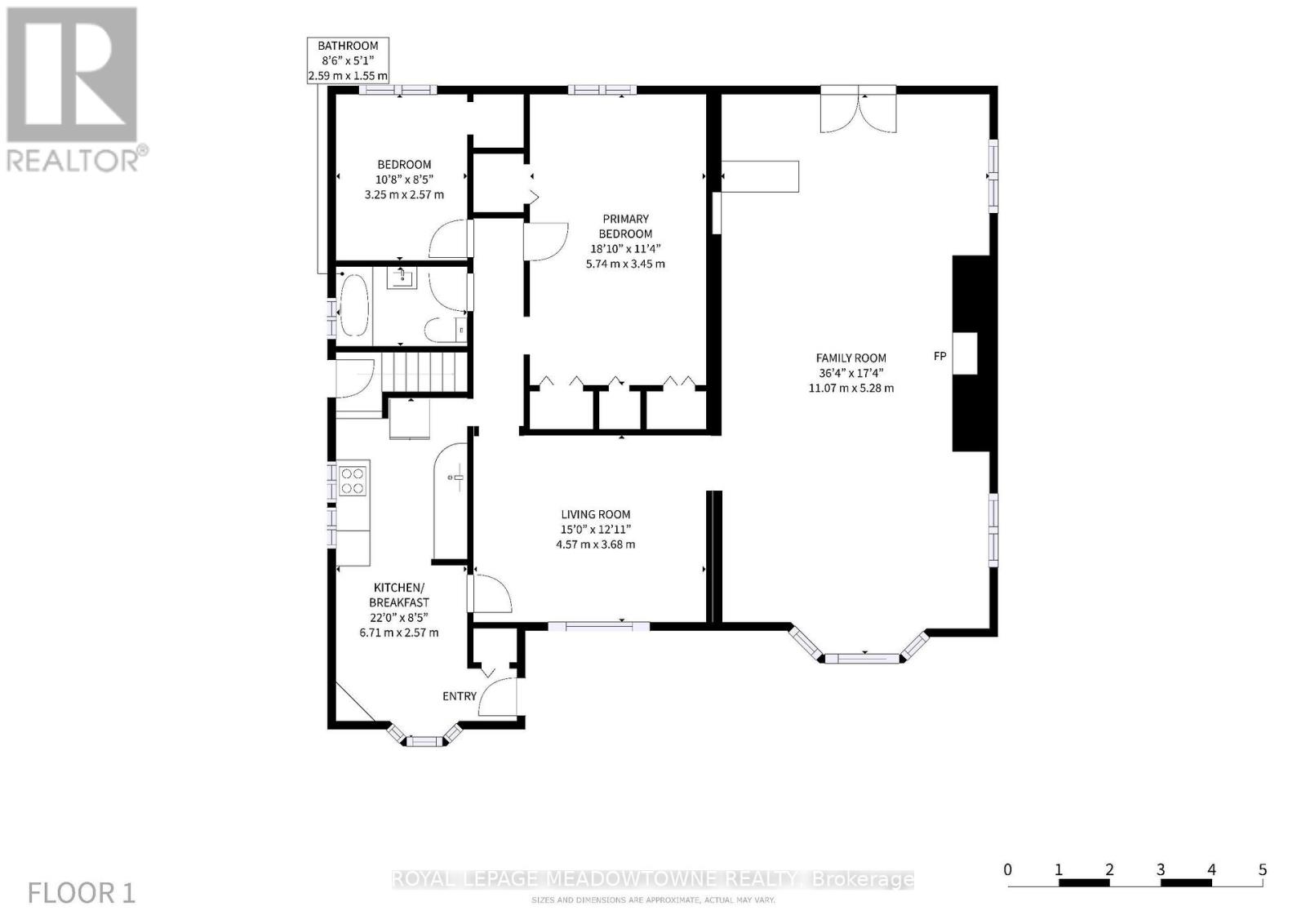
Rooms

Level Type Dimensions
Basement Workshop 4.62 m x 4.09 m
Basement Recreational, Games Room 5.77 m x 4.55 m
Basement Laundry Room 4.29 m x 3.56 m
Basement Pantry 4.8 m x 3.53 m
Basement Bathroom 1.32 m x 0.86 m
Basement Bedroom 3 3.48 m x 3.35 m
Basement Bedroom 4 4.14 m x 3.25 m
Main Level Living Room 4.57 m x 3.68 m
Main Level Kitchen 6.71 m x 2.57 m
Main Level Family Room 11.07 m x 5.28 m
Main Level Primary Bedroom 5.74 m x 3.45 m
Main Level Bedroom 2 3.25 m x 2.57 m
Main Level Bathroom 2.59 m x 1.55 m
Ground Level Sunroom 3.98 m x 3.39 m

Land

Acreage No
Fence Type Partially Fenced, Fenced Yard
Land Amenities Park, Place Of Worship, Schools
Sewer Sanitary Sewer
Size Depth 150 Ft
Size Frontage 66 Ft
Size Irregular 66 X 150 Ft
Size Total Text 66 X 150 Ft|under 1/2 Acre
Zoning Description Ldr1-2[mn]

Parking

Detached Garage
Garage

Utilities

Cable Available
Electricity Installed
Sewer Installed

https://www.realtor.ca/real-estate/29482597/43-cobblehill-road-halton-hills-ac-acton-1045-ac-acton

Contact Us

Contact us for more information

Generating Captcha

    Your Name *

    Your Email *

    Your Contact Number *

    Subject

    Your Message

    Thank you for contacting us, one of our colleagues will contact you shortly. Thank you.

    Lakeridge Property International

    close-link