Search a Street, City, Province, RP Number or MLS® Number
 

421 Corner Glen Way NE Calgary, Alberta T3N 2P1

No favourites found!

 

$826,400

MLS® Number: A2273963
4 3 4

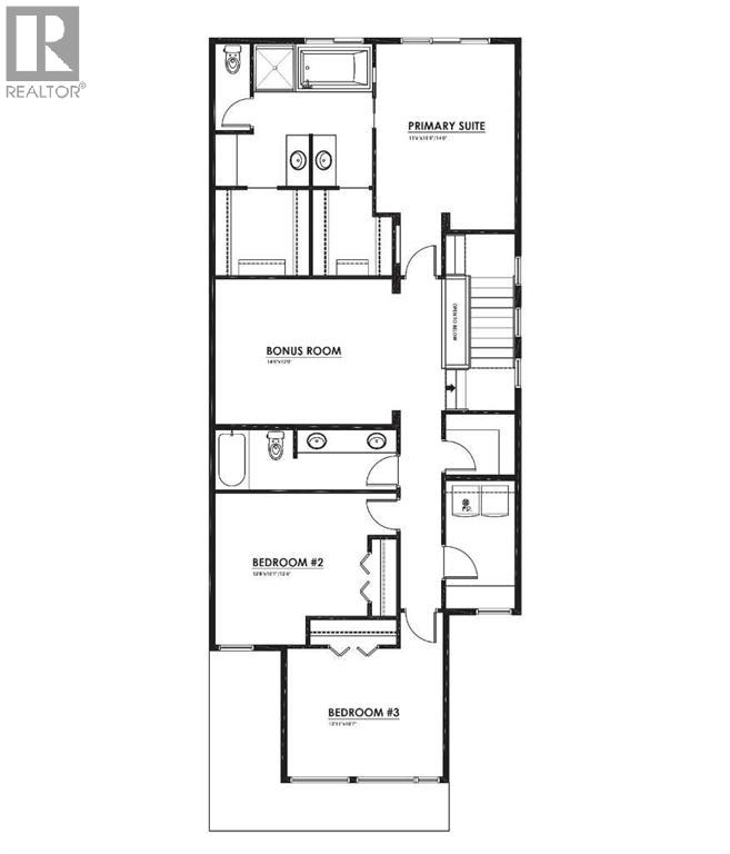
*SIDE ENTRANCE*BRAND NEW HOME*QUICK POSSESSION*10 SOLAR PANELS*MAIN FLOOR BEDROOM SUITE* Amazing Design! Unique in Features! Over 2600+ SF of Stylish design welcomes you into this stunning FOUR BEDROOM and 3 FULL BATH home located in the beautiful community of Cornerstone. You're welcome to a thoughtfully designed living space that maximizes every inch while offering an abundance of space for your whole family to enjoy! The Gorgeous OPEN FLOOR PLAN invites you in to discover a lovely kitchen that boasts beautiful QUARTZ countertops, a sleek stainless steel Whirlpool appliance package with an upgraded electric stove, a French Door fridge with/ Internal Water/Ice, a Microwave and a Broan power pack built-in cabinet hood fan. A large walk-in corner pantry and beautiful extended oversized flush centre Island that overlooks the generous great room and dining room-Ideal for all entertaining. A sizeable 4TH BEDROOM on the main floor, perfect for a large family or working from home as you have a full bath adjacent to the functional space with a private pocket door access. Upstairs, you will discover THREE MORE BEDROOMS with a Primary Bedroom boasting a 5pc en suite with dual vanities, a stand-alone shower, an oversized bath and two large walk-in closets. A centralized BONUS ROOM offers an additional living space and another full bath, plus 2nd-floor laundry with a window feature, completing the level. ADDITIONAL FEATURES: Fit and Finish SELECT, professionally designed Light Wood Palette, rear patio door, convenient side entrance, raised 9' basement ceiling height, and 3-piece rough-in plumbing. Situated close to the International Airport with quick access to both Deer Foot Trail and Stoney Trail, along with new amenities being added to the community continuously, you will enjoy all Cornerstone has to offer. A brand new build with all of the difficult decisions decided along with a functional and intelligent floorplan for a large family. Perfect!! (id:59126)

Property Details

MLS® Number A2273963
Property Type Single Family
Community Name Cornerstone
Amenities Near By Playground, Schools
Features Pvc Window, No Animal Home, No Smoking Home
Parking Space Total 4
Plan 2410507
Structure None

Building

Bathroom Total 3
Bedrooms Above Ground 4
Bedrooms Total 4
Appliances Refrigerator, Dishwasher, Stove, Microwave, Hood Fan, Window Coverings, Garage Door Opener, Washer & Dryer, Water Heater - Tankless
Basement Development Unfinished
Basement Features Separate Entrance
Basement Type Full (unfinished)
Constructed Date 2025
Construction Material Wood Frame
Construction Style Attachment Detached
Cooling Type None
Exterior Finish Stone, Vinyl Siding
Flooring Type Carpeted, Vinyl Plank
Foundation Type Poured Concrete
Heating Fuel Natural Gas
Heating Type Forced Air
Stories Total 2
Size Interior 2,633 Ft2
Total Finished Area 2632.97 Sqft
Type House
Utility Water Municipal Water

Rooms

Level Type Dimensions
Main Level Living Room 13.52 Ft x 15.00 Ft
Main Level Dining Room 11.32 Ft x 15.00 Ft
Main Level Bedroom 12.24 Ft x 11.08 Ft
Main Level Kitchen 16.57 Ft x 10.50 Ft
Main Level 3pc Bathroom 4.82 Ft x 8.76 Ft
Upper Level Laundry Room 11.17 Ft x 6.00 Ft
Upper Level Primary Bedroom 15.42 Ft x 14.01 Ft
Upper Level Bedroom 12.67 Ft x 12.50 Ft
Upper Level Bonus Room 14.67 Ft x 12.00 Ft
Upper Level 5pc Bathroom 12.34 Ft x 13.52 Ft
Upper Level Other 6.83 Ft x 7.75 Ft
Upper Level Other 8.33 Ft x 7.75 Ft
Upper Level Bedroom 12.92 Ft x 10.58 Ft
Upper Level 4pc Bathroom Measurements not available

Land

Acreage No
Fence Type Not Fenced
Land Amenities Playground, Schools
Size Depth 77 M
Size Frontage 17.23 M
Size Irregular 907.00
Size Total 907 M2|7,251 - 10,889 Sqft
Size Total Text 907 M2|7,251 - 10,889 Sqft
Zoning Description R-g

Parking

Concrete
Attached Garage 2

https://www.realtor.ca/real-estate/29162965/421-corner-glen-way-ne-calgary-cornerstone

Contact Us

Contact us for more information

Generating Captcha

    Your Name *

    Your Email *

    Your Contact Number *

    Subject

    Your Message

    Thank you for contacting us, one of our colleagues will contact you shortly. Thank you.

    Lakeridge Property International

    close-link