Search a Street, City, Province, RP Number or MLS® Number
 

311 5880 Dover Crescent Richmond, British Columbia V7C 5P5

No favourites found!

 

$758,000

Maintenance,

$464.08 Monthly

MLS® Number: R2994043

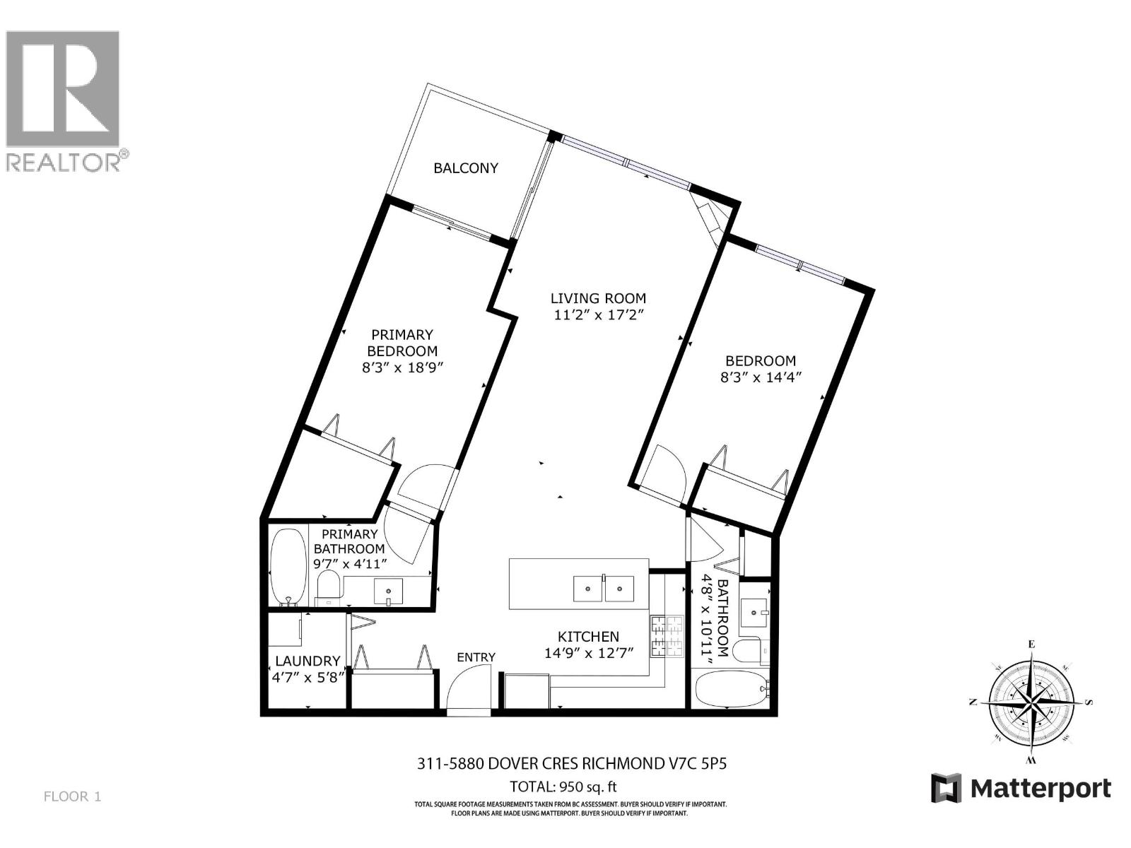
Enjoy Waterside Dover Crescent! This East Facing bright, partially renovated, and spacious 2-bedroom, 2-bath condo is perfect for your dream home, surrounded by cherry flowers. This home has been kept in mint condition. Its layout has an open kitchen with quartz countertop, gas fireplace, in-suite laundry, 2 large bathrooms with upgraded quartz countertop, and a covered balcony with great water and mountain view. 1 secured under building parking, 1 storage locker. A very well-maintained complex with a steel Roof, a Party room, a gym, tennis courts and a basketball court. Steps to the dyke, trails, shopping plaza at Terra Nova, and Richmond oval. Only 1 cat allowed, no dogs allowed. (id:59126)

Property Details

MLS® Number R2994043
Property Type Single Family
Community Features Pets Allowed With Restrictions
Features Elevator
Parking Space Total 1
View Type View

Building

Bathroom Total 2
Bedrooms Total 2
Amenities Exercise Centre, Laundry - In Suite, Recreation Centre
Appliances All
Constructed Date 1994
Heating Fuel Natural Gas
Heating Type Baseboard Heaters
Size Interior 950 Ft2
Type Apartment

Land

Acreage No
Landscape Features Garden Area

Parking

Underground

https://www.realtor.ca/real-estate/28210791/311-5880-dover-crescent-richmond

Contact Us

Contact us for more information

Generating Captcha

    Your Name *

    Your Email *

    Your Contact Number *

    Subject

    Your Message

    Thank you for contacting us, one of our colleagues will contact you shortly. Thank you.

    Lakeridge Property International

    close-link