Search a Street, City, Province, RP Number or MLS® Number
 

31 Pleasant Street Melvern Square, Nova Scotia B0P 1R0

No favourites found!

 

$549,900

MLS® Number: 202604864
2 1

A rare opportunity to own a property that offers both serious shop workspace and comfortable living. The impressive 2,000 sq.ft. detached garage immediately sets this property apart, offering a 15'9" ceiling height, a 12' x 12' overhead door, a dedicated office space within the garage, and a wheelchair-accessible 2-piece washroom. Ideal for mechanics, tradespeople, contractors, hobbyists, or anyone needing serious workspace at home, this is a unique setup for projects, equipment, vehicles, or business use. And the value doesnt stop there the well maintained two-bedroom, one-bath bungalow sits on just over half an acre and has been thoughtfully updated with a steel roof, windows, siding, hot tub and generator panel. The walkout basement adds future potential for a rental or in-law suite, additional living space, storage, or workshop use. Located just minutes from 14 Wing Greenwood and close to amenities, this versatile property offers an exceptional combination of home, workspace, and future potential. Buyer to verify zoning, approvals, and permitted uses. (id:59126)

Property Details

MLS® Number 202604864
Property Type Single Family
Community Name Melvern Square
Features Treed
Structure Shed

Building

Bathroom Total 1
Bedrooms Above Ground 2
Bedrooms Total 2
Appliances Range - Electric, Dishwasher, Refrigerator, Hot Tub
Architectural Style Bungalow
Basement Type Crawl Space
Constructed Date 1957
Construction Style Attachment Detached
Cooling Type Wall Unit, Heat Pump
Exterior Finish Wood Siding
Flooring Type Laminate
Foundation Type Poured Concrete
Stories Total 1
Size Interior 796 Ft2
Total Finished Area 796 Sqft
Type House
Utility Water Drilled Well

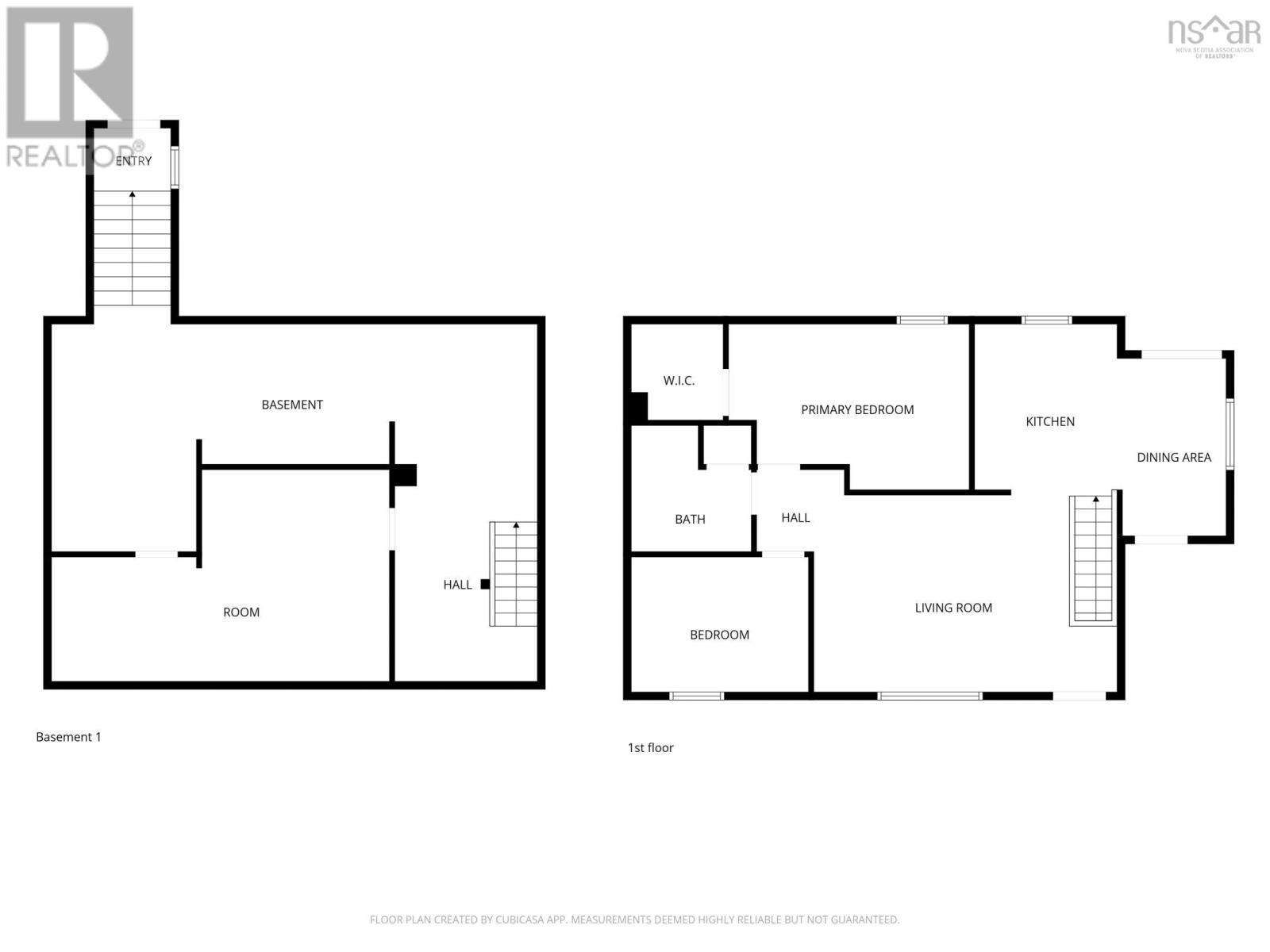
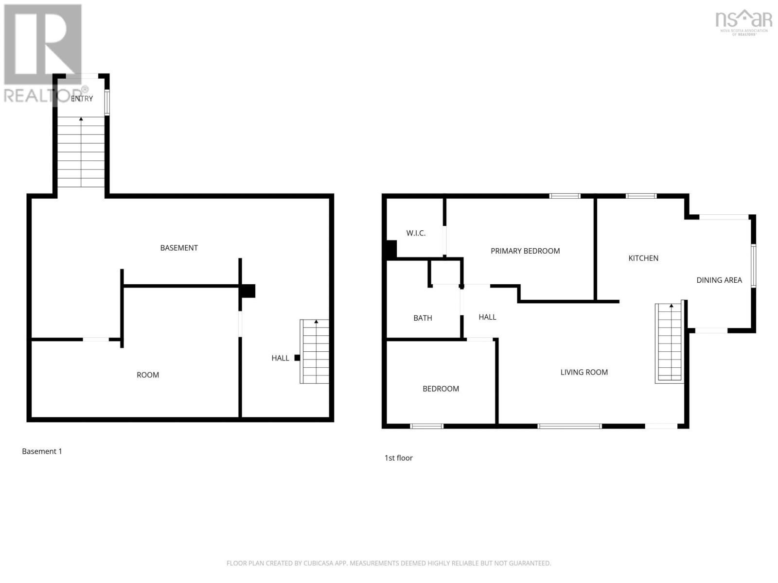
Rooms

Level Type Dimensions
Lower Level Family Room 20.8x7.4
Main Level Eat In Kitchen 15.5x7.8+2.3x9.3
Main Level Living Room 16.4x12
Main Level Primary Bedroom 15.3x8.5+7.6x1.8
Main Level Bath (# Pieces 1-6) 7.4x7.5
Main Level Bedroom 11x8.6
Main Level Foyer 5.5x3.4

Land

Acreage No
Landscape Features Landscaped
Sewer Septic System
Size Irregular 0.6573
Size Total 0.6573 Ac
Size Total Text 0.6573 Ac

Parking

Garage
Detached Garage
Gravel
Parking Space(s)
Paved Yard

https://www.realtor.ca/real-estate/29487096/31-pleasant-street-melvern-square-melvern-square

Contact Us

Contact us for more information

Generating Captcha

    Your Name *

    Your Email *

    Your Contact Number *

    Subject

    Your Message

    Thank you for contacting us, one of our colleagues will contact you shortly. Thank you.

    Lakeridge Property International

    close-link