Search a Street, City, Province, RP Number or MLS® Number
 

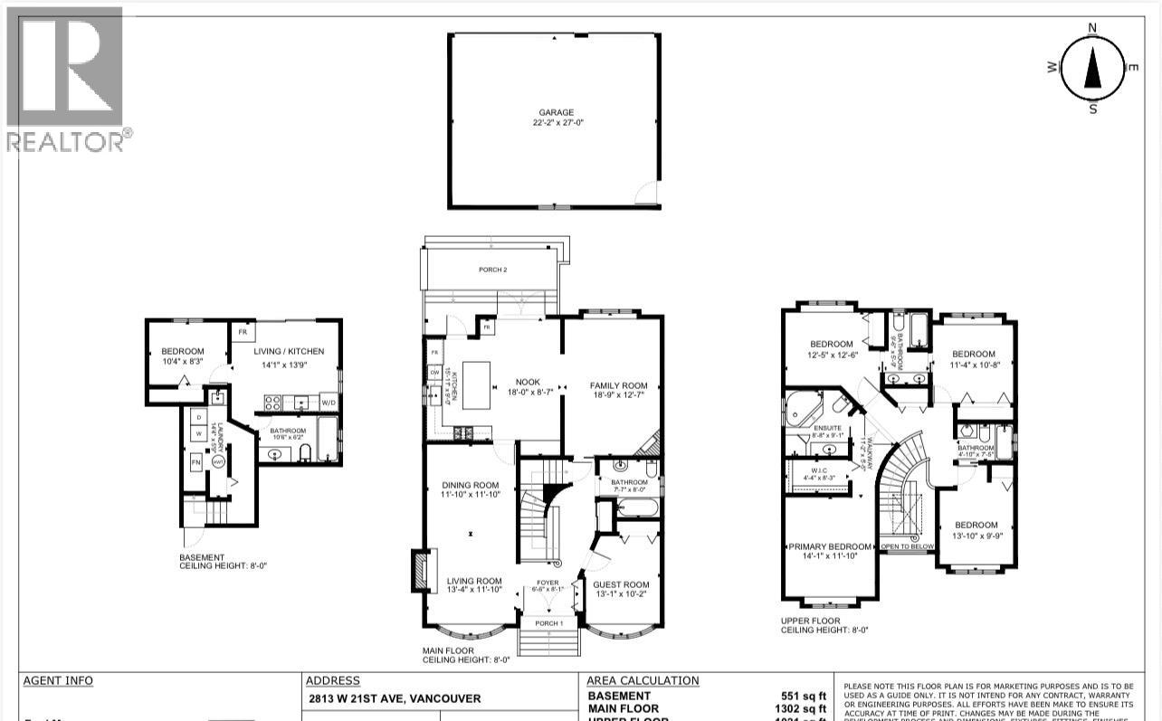
2813 W 21st Avenue Vancouver, British Columbia V6L 1K5

No favourites found!

 

$3,098,000

MLS® Number: R3089899
6 5 3

South exposure, bright, and quiet. Well kept over 2,930 square ft of living space on a 4,883 square ft lot with a 40 ft frontage. Features 6 bedrooms plus a den & 5 bathrooms. Includes a one-bedroom suite in the basement and a 500 square ft crawl space for storage. The recent updates to the home include: Just freshly painted, new windows installed in 2020. Enjoy a nice 350 square ft sundeck in the backyard and a triple-car garage. Two sets of laundry. Located in the school catchment for Carnarvon Elementary and Prince of Wales Secondary. Close to Carnarvon Park and nearby shops. Easy to show. Sun APRIL 12 open house from 2 to 3pm (id:59126)

Property Details

MLS® Number R3089899
Property Type Single Family
Amenities Near By Recreation, Shopping
Features Central Location
Parking Space Total 3

Building

Bathroom Total 5
Bedrooms Total 6
Amenities Laundry - In Suite
Appliances All
Architectural Style 2 Level
Basement Development Unknown
Basement Features Unknown
Basement Type Full (unknown)
Constructed Date 1994
Construction Style Attachment Detached
Fireplace Present Yes
Fireplace Total 2
Heating Fuel Natural Gas
Heating Type Radiant Heat
Size Interior 2,935 Ft2
Type House

Land

Acreage No
Land Amenities Recreation, Shopping
Size Frontage 40 Ft
Size Irregular 4883.6
Size Total 4883.6 Sqft
Size Total Text 4883.6 Sqft

Parking

Garage 3

https://www.realtor.ca/real-estate/29360870/2813-w-21st-avenue-vancouver

Contact Us

Contact us for more information

Generating Captcha

    Your Name *

    Your Email *

    Your Contact Number *

    Subject

    Your Message

    Thank you for contacting us, one of our colleagues will contact you shortly. Thank you.

    Lakeridge Property International

    close-link