Search a Street, City, Province, RP Number or MLS® Number
 

26 Griffin Industrial Point Cochrane, Alberta T4C 0A2

No favourites found!

 

$3,150,000

MLS® Number: A2254001

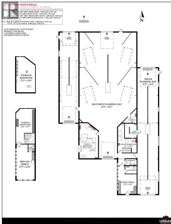
Introducing a rare opportunity to own a purpose-built, high-visibility commercial property designed to serve a wide range of vehicle types — from compact cars to large trucks. Located in the thriving industrial area of Griffin Industrial, this 8,968 sq ft facility offers a turn-key solution for operators in the car/truck wash industry or those seeking a unique income-producing asset.Main Level Highlights: 4 self-serve wash bays, Massive 96-ft Truck & RV Bay (Max Height: 13’6”), Touchless Typhoon drive-through wash bay, Dedicated room for a potential dog wash, Public office, 2 utility rooms, water softener room, and two 2-pc washroomsMezzanine Level: Private office, 2 storage rooms, Additional 2-pc washroomModern, clean, and professionally maintained, this facility is equipped with premium components, a brand new Navien Boiler System, and intuitive flow-through access for ease of customer use. The office space is bright and welcoming, while the mezzanine level provides functional work and storage areas.Additional Features: Paved access routes and drive-through lanes, Excellent signage exposure, Plenty of customer and employee parking, Easy access for trucks, trailers, and RVs.This property is ideal for an owner-operator or investor looking to expand or enter the car/truck wash industry with a one-of-a-kind facility — a rarity in today’s market.High-traffic location with quick access to major commuter and transport routes makes this an unbeatable opportunity. (id:59126)

Business

Business Type Automobile
Business Sub Type Car wash

Property Details

MLS® Number A2254001
Property Type Business
Community Name Industrial
Plan 0210633
Road Type Paved Road

Building

Constructed Date 2019
Size Exterior 8968 Sqft
Size Interior 8,968 Ft2
Total Finished Area 8968 Sqft

Land

Acreage No
Size Irregular 2530.00
Size Total 2530 M2|21,780 - 32,669 Sqft (1/2 - 3/4 Ac)
Size Total Text 2530 M2|21,780 - 32,669 Sqft (1/2 - 3/4 Ac)
Zoning Description I-g

https://www.realtor.ca/real-estate/28823610/26-griffin-industrial-point-cochrane-industrial

Contact Us

Contact us for more information

Generating Captcha

    Your Name *

    Your Email *

    Your Contact Number *

    Subject

    Your Message

    Thank you for contacting us, one of our colleagues will contact you shortly. Thank you.

    Lakeridge Property International

    close-link