Search a Street, City, Province, RP Number or MLS® Number
 

24 Chapel Street Annapolis Royal, Nova Scotia B0S 1A0

No favourites found!

 

$549,900

MLS® Number: 202515032
3 2

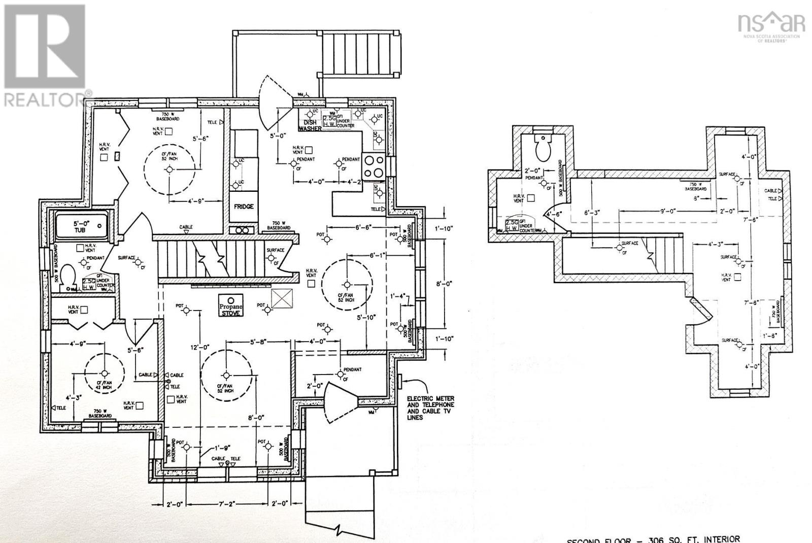
Twenty-four Chapel Street, in the heart of friendly Annapolis Royal, is steps away from the historic town center. Shops, restaurants, farmers market, and amenities are nearby, as is the celebrated King's Theatre, offering live performance and cinema year-round. Stroll the boardwalk and take in the sea air along the shores of the beautiful Annapolis Basin. This custom home was designed and crafted in 2011 using energy-efficient ICF (Insulated Concrete Form) construction; a guarantee of a cozy, stable and quiet living environment, whatever the weather.  The main floor's custom kitchen opens onto a sunny dining area, which looks on to the garden. The adjacent living room features a hearth with an attractive new propane stove. Two bedrooms (both with large closets) and a four-piece bath are also on this level. The second floor features a versatile loft-like space that can serve as an office or studio. A two-piece bathroom, and an attic space with good development potential, are also on this level.  The basement is clean and spacious, with new flooring and paint, ideal for a home gym or rec room. There's an area with a workbench, and a spacious laundry room equipped with a utility sink and a walk-out to the backyard.   For enhanced water quality, the house includes a whole-home water filtration system plus a reverse osmosis unit under the kitchen sink. Heating and cooling are efficiently managed by a ceiling-mounted ductless heat pump, supplemented by baseboard heaters and the propane stove. The back door opens to a small but charming partially-enclosed porch overlooking the private, landscaped backyard, with mature flower beds, trees, and shrubs. Close to public walking trails.  This house has excellent internet service to support working from home, perfect for a single professional or a couple. The fenced back yard is a great asset for dog lovers and gardeners. One of the rare newer builds available in the area, it is priced to sell, and ready for a quick clo (id:59126)

Property Details

MLS® Number 202515032
Property Type Single Family
Community Name Annapolis Royal
Amenities Near By Golf Course, Playground, Public Transit, Shopping, Place Of Worship
Community Features Recreational Facilities, School Bus
Equipment Type Propane Tank
Rental Equipment Type Propane Tank

Building

Bathroom Total 2
Bedrooms Above Ground 3
Bedrooms Total 3
Appliances Stove, Dishwasher, Dryer, Washer, Freezer - Stand Up, Microwave, Refrigerator, Gas Stove(s)
Architectural Style 2 Level
Basement Development Partially Finished
Basement Type Full (partially Finished)
Constructed Date 2011
Construction Style Attachment Detached
Cooling Type Heat Pump
Exterior Finish Wood Siding
Flooring Type Ceramic Tile, Hardwood
Half Bath Total 1
Stories Total 2
Size Interior 1,700 Ft2
Total Finished Area 1700 Sqft
Type House
Utility Water Municipal Water

Rooms

Level Type Dimensions
Second Level Bedroom 15.5x8.8+4x4
Second Level Bath (# Pieces 1-6) 6.4x4.11+4x4.-2pc
Second Level Other 5. x 10.11-Upstair Hall
Basement Recreational, Games Room 16.11 x 11.1
Basement Recreational, Games Room 10.4 x 11.7+jog
Basement Workshop 8. x 16.2
Basement Laundry / Bath 11.2 x 11.3
Basement Storage 9.2 x 13.11
Basement Storage 3.2 x 7.10
Main Level Foyer 8.2 x 4.1
Main Level Dining Nook 10.5 x 11.6
Main Level Kitchen 11.1 x 13.8
Main Level Living Room 11.1 x 16.2
Main Level Bath (# Pieces 1-6) 5.8 x 7.4-4pc
Main Level Bedroom 9.7 x 8.5
Main Level Bedroom 11.2 x 9.12
Main Level Other 6.10 x 2.11-Main Hall

Land

Acreage No
Land Amenities Golf Course, Playground, Public Transit, Shopping, Place Of Worship
Landscape Features Landscaped
Sewer Municipal Sewage System
Size Irregular 0.37
Size Total 0.37 Ac
Size Total Text 0.37 Ac

Parking

Gravel

https://www.realtor.ca/real-estate/28488818/24-chapel-street-annapolis-royal-annapolis-royal

Contact Us

Contact us for more information

Generating Captcha

    Your Name *

    Your Email *

    Your Contact Number *

    Subject

    Your Message

    Thank you for contacting us, one of our colleagues will contact you shortly. Thank you.

    Lakeridge Property International

    close-link