Search a Street, City, Province, RP Number or MLS® Number
 

238 Gold Street Sudbury, Ontario P3E 6A4

No favourites found!

 

$679,900

MLS® Number: 2126732
4 2

Welcome to 238 Gold Street, a beautifully maintained and thoughtfully updated home located just off Corsi Hill. From the moment you step inside, you’ll appreciate the bright and welcoming layout, complemented by updated flooring and large windows that fill the home with natural light. The main living area offers a comfortable space to relax or entertain, flowing seamlessly into a stylish, modern kitchen. Featuring crisp cabinetry, granite countertops, and ample prep space, this kitchen is designed for both everyday living and hosting. This home offers four well-sized bedrooms and two renovated bathrooms, providing flexibility for families, guests, or home office needs. The finished lower level expands your living space and features a cozy family room along with a custom bar, creating an ideal setting for entertaining, movie nights, or hosting guests. Outside, enjoy a backyard with your deck ideal for summer barbecues or quiet evenings, while the attached garage provides excellent storage and everyday convenience. This move-in-ready home shows true pride of ownership and is a fantastic opportunity for buyers looking for comfort, functionality, and location. Book your showing today. Go to this link for the 3D Tour https://my.matterport.com/show/?m=beC6G7SpvYB& (id:59126)

Property Details

MLS® Number 2126732
Property Type Single Family
Equipment Type Water Heater - Gas
Rental Equipment Type Water Heater - Gas

Building

Bathroom Total 2
Bedrooms Total 4
Architectural Style Bungalow
Basement Type Full
Cooling Type Central Air Conditioning
Exterior Finish Brick, Vinyl
Heating Type Forced Air
Roof Material Asphalt Shingle
Roof Style Unknown
Stories Total 1
Type House
Utility Water Municipal Water

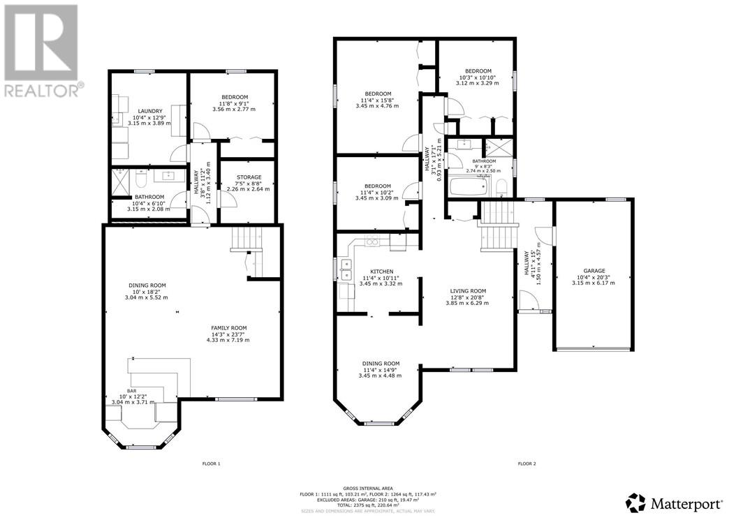
Rooms

Level Type Dimensions
Basement Storage 7'5"" x 8'8""
Basement Laundry Room 10'4"" x 12'9""
Basement Bedroom 11'8"" x 9'1""
Basement Other 10'0"" x 12'2""
Basement Dining Room 10'0"" x 18'2""
Basement Family Room 14'3"" x 23'7""
Main Level Bedroom 10'3"" x 10'10""
Main Level Bedroom 11'4"" x 10'2""
Main Level Primary Bedroom 11'4"" x 15'8""
Main Level Living Room 12'8"" x 20'8""
Main Level Dining Room 11'4"" x 14'9""
Main Level Kitchen 11'4"" x 10'11""

Land

Access Type Year-round Access
Acreage No
Sewer Municipal Sewage System
Size Total Text Under 1/2 Acre
Zoning Description R1-5

Parking

Garage

https://www.realtor.ca/real-estate/29446890/238-gold-street-sudbury

Contact Us

Contact us for more information

Generating Captcha

    Your Name *

    Your Email *

    Your Contact Number *

    Subject

    Your Message

    Thank you for contacting us, one of our colleagues will contact you shortly. Thank you.

    Lakeridge Property International

    close-link