Search a Street, City, Province, RP Number or MLS® Number
 

21453 2 Highway Fort Lawrence, Nova Scotia B4H 3Y5

No favourites found!

 

$274,900

MLS® Number: 202604549

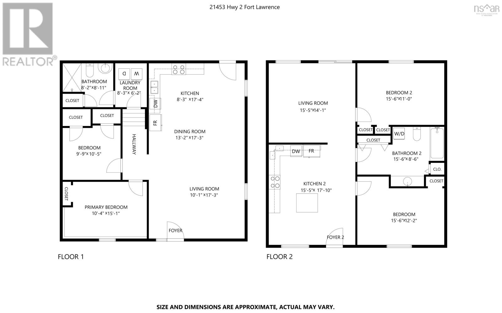
This well-maintained duplex is located just outside Amherst and offers a peaceful setting with incredible views of the Tantramar Marsh. Purpose-built as an over/under duplex, the property features two 2-bedroom units along with several recent upgrades, including a durable metal roof. The main-level unit offers a bright open-concept layout with the living room, dining area, and kitchen all flowing together seamlessly. This unit also includes two good-sized bedrooms, a full bathroom, and a convenient laundry room. Currently owner-occupied, this unit could easily rent for approximately $1,500 per month with heat and lights included. The upper unit is accessed by rear exterior stairs and opens into a bright kitchen with a dining area overlooking the marsh. This level also features two large bedrooms, a spacious bathroom with laundry, and a comfortable living room at the front of the home with access to a balcony. The upper unit is currently rented for $1,400 per month with heat and lights included. Whether you choose to live in one unit and generate income from the other, rent both units as an investment property, or accommodate a multi-generational family, this property offers excellent flexibility and potential. Be sure to check out the multimedia link for the 3D tour and book your showing today! (id:59126)

Property Details

MLS® Number 202604549
Property Type Multi-family
Community Name Fort Lawrence
Amenities Near By Golf Course, Shopping
Community Features Recreational Facilities, School Bus
Features Balcony

Building

Appliances Stove, Dishwasher, Dryer, Washer, Refrigerator
Basement Type None
Constructed Date 1987
Exterior Finish Vinyl
Flooring Type Laminate, Vinyl
Foundation Type Concrete Slab
Type Duplex
Utility Water Drilled Well

Land

Acreage No
Land Amenities Golf Course, Shopping
Sewer Municipal Sewage System
Size Irregular 0.7846
Size Total 0.7846 Ac
Size Total Text 0.7846 Ac

Parking

Gravel

https://www.realtor.ca/real-estate/29469344/21453-2-highway-fort-lawrence-fort-lawrence

Contact Us

Contact us for more information

Generating Captcha

    Your Name *

    Your Email *

    Your Contact Number *

    Subject

    Your Message

    Thank you for contacting us, one of our colleagues will contact you shortly. Thank you.

    Lakeridge Property International

    close-link