Search a Street, City, Province, RP Number or MLS® Number
 

201, 10404 100 Street Grande Prairie, Alberta t8v 2m2

No favourites found!

 

$8 / ft2

MLS® Number: A2214559

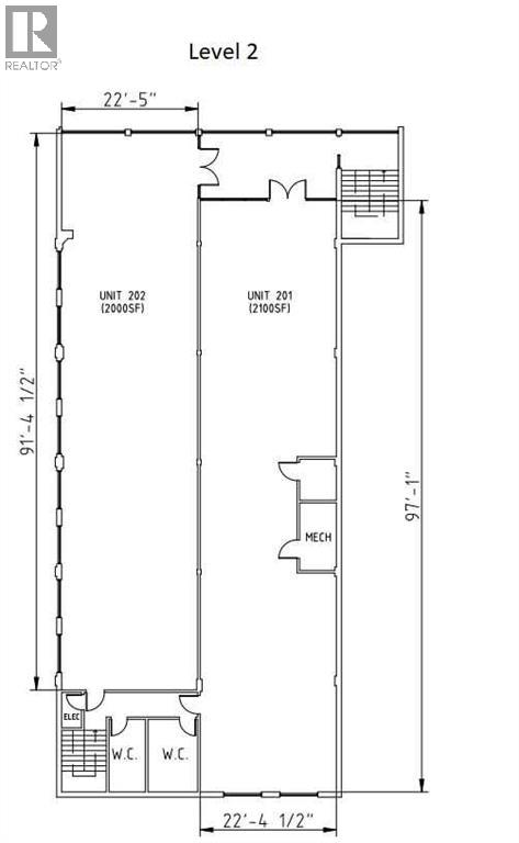
Fabulous location for a Second Floor Retail! This 2100 SQFT mixed use commercial space has abundance of windows for a bright and cheery show room! Centrally located with lots of parking in front and alongside this building for customers. Lease is NNN. Book your showing today. Immediate Possession Base $1,400 + Comm Costs $1,197 = $2,597 + GST (Includes Utilities!!!) Grab this great space today! (id:59126)

Property Details

MLS® Number A2214559
Property Type Retail
Community Name VLA Montrose

Building

Constructed Date 1965
Size Exterior 2100 Sqft
Size Interior 2,100 Ft2
Total Finished Area 2100 Sqft
Type Retail

Land

Acreage No
Size Total Text Unknown

https://www.realtor.ca/real-estate/28209253/201-10404-100-street-grande-prairie-vla-montrose

Contact Us

Contact us for more information

Generating Captcha

    Your Name *

    Your Email *

    Your Contact Number *

    Subject

    Your Message

    Thank you for contacting us, one of our colleagues will contact you shortly. Thank you.

    Lakeridge Property International

    close-link