Search a Street, City, Province, RP Number or MLS® Number
 

20 Gala Drive Berwick, Nova Scotia B0P 1E0

No favourites found!

 

$479,000

MLS® Number: 202601268
3 2

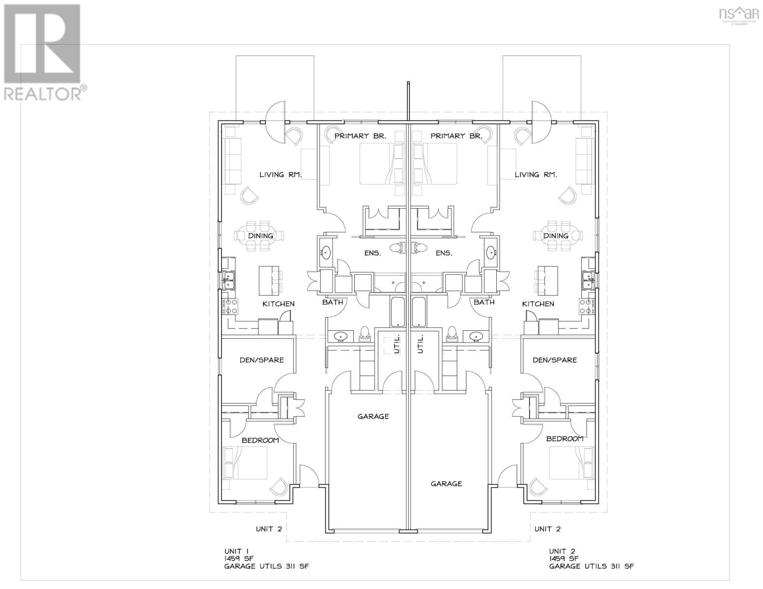
Welcome to this modern 3-bedroom, 2-bath side-by-side semi-detached home in the heart of vibrant Berwick. Designed for efficient, low-maintenance living, this newly constructed one-level home offers a functional layout and contemporary finishes throughout. The open-concept kitchen, living, and dining area is ideal for both everyday living and entertaining. The interior will feature upgraded kitchens and bathrooms, complemented by high-end, energy-efficient Samsung appliances, whisper-quiet bathroom fans, and a large, high-quality heat pump for year-round comfort. The home has been constructed using the ZIP System building envelope, enhancing air sealing, moisture control, and overall energy efficiency. The exterior will be further enhanced with decorative stone accents, adding curb appeal and architectural interest. Additional bedrooms and a full bath provide flexible space for family, guests, or a home office. Step outside to enjoy the deck, with a privacy fence for added comfort. All of this is within walking distance of Berwicks shops, restaurants, community amenities, and popular recreation centre. Estimated completion: April. (id:59126)

Property Details

MLS® Number 202601268
Property Type Single Family
Community Name Berwick
Amenities Near By Golf Course, Park, Playground, Public Transit, Shopping, Place Of Worship
Community Features Recreational Facilities, School Bus

Building

Bathroom Total 2
Bedrooms Above Ground 3
Bedrooms Total 3
Appliances Stove, Dishwasher, Microwave Range Hood Combo, Refrigerator
Basement Type None
Construction Style Attachment Semi-detached
Cooling Type Heat Pump
Exterior Finish Stone, Vinyl
Flooring Type Laminate
Foundation Type Concrete Slab
Stories Total 1
Size Interior 1,459 Ft2
Total Finished Area 1459 Sqft
Type House
Utility Water Drilled Well

Rooms

Level Type Dimensions
Main Level Bedroom 11.9 x 12.10
Main Level Bedroom 10.5 x 11.9
Main Level Laundry Room 7.8 x 7.4
Main Level Kitchen 11.5 x 12
Main Level Dining Room 11.5 x 9.2
Main Level Living Room 15.4 x 13.6
Main Level Primary Bedroom 13.4 x 13.10
Main Level Ensuite (# Pieces 2-6) 5.7 x 13.10
Main Level Bath (# Pieces 1-6) 7.8 x 3.1 + jog

Land

Acreage No
Land Amenities Golf Course, Park, Playground, Public Transit, Shopping, Place Of Worship
Landscape Features Landscaped
Sewer Municipal Sewage System
Size Irregular 0.2303
Size Total 0.2303 Ac
Size Total Text 0.2303 Ac

Parking

Garage
Attached Garage
Paved Yard

https://www.realtor.ca/real-estate/29275966/20-gala-drive-berwick-berwick

Contact Us

Contact us for more information

Generating Captcha

    Your Name *

    Your Email *

    Your Contact Number *

    Subject

    Your Message

    Thank you for contacting us, one of our colleagues will contact you shortly. Thank you.

    Lakeridge Property International

    close-link