Search a Street, City, Province, RP Number or MLS® Number
 

1975 Mccaskill Drive Crossfield, Alberta T0M 0C1

No favourites found!

 

$499,000

MLS® Number: A2279335
3 3 2

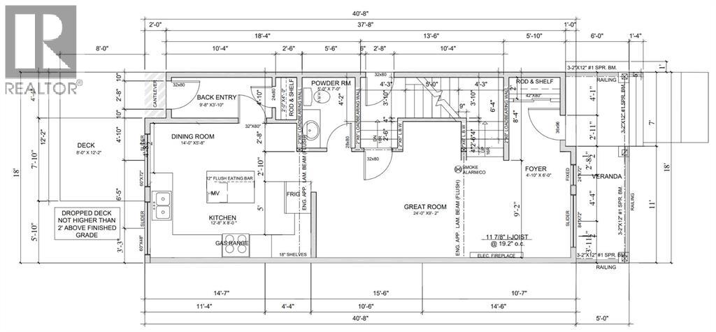
Experience the comfort and style of this custom-built home in the welcoming community of Crossfield. This pre-construction laned home offers 1,443 sq. ft. of smartly designed living space over two stories, with 9-ft ceilings on every level creating a bright, open feel.A charming front porch and a spacious backyard deck set the stage for relaxed summer evenings with family and friends. Inside, the open-concept main floor blends style with function. The kitchen features quartz countertops, a breakfast bar, stainless steel appliances, and textured cabinets. The great room is filled with natural light and highlighted by a sleek electric fireplace. Durable vinyl plank flooring and dual-pane windows add both style and efficiency. A convenient two-piece powder room completes the main floor.Upstairs, the primary suite includes a walk-in closet and a spa-inspired 4-piece ensuite. Two additional bedrooms share another full bathroom, and the laundry room with sink makes everyday living easier.Additional features include a double detached garage, landscaped backyard, and a roughed-in basement with a separate side entrance, giving you options for future development. Buyers also have the opportunity to personalize finishes to match their style.Iron Landing in Crossfield is a family-friendly community with parks, playgrounds, schools, shopping, and dining close by. Crossfield Elementary and W.G. Murdoch School are within walking distance, while Airdrie is less than 10 minutes away and Calgary just 25 minutes. (id:59126)

Property Details

MLS® Number A2279335
Property Type Single Family
Amenities Near By Park, Playground, Recreation Nearby, Schools, Shopping
Features Back Lane, No Animal Home, No Smoking Home, Gas Bbq Hookup
Parking Space Total 2
Plan 2410344
Structure Deck

Building

Bathroom Total 3
Bedrooms Above Ground 3
Bedrooms Total 3
Appliances Washer, Refrigerator, Range - Gas, Dishwasher, Dryer, Microwave, Hood Fan
Basement Development Unfinished
Basement Features Separate Entrance
Basement Type Full (unfinished)
Constructed Date 2025
Construction Material Poured Concrete, Wood Frame
Construction Style Attachment Detached
Cooling Type None
Exterior Finish Concrete, Stone, Vinyl Siding
Fire Protection Smoke Detectors
Fireplace Present Yes
Fireplace Total 1
Flooring Type Carpeted, Concrete, Tile, Vinyl Plank
Foundation Type Poured Concrete
Half Bath Total 1
Heating Fuel Natural Gas
Heating Type Other, Forced Air
Stories Total 2
Size Interior 1,443 Ft2
Total Finished Area 1443 Sqft
Type House

Rooms

Level Type Dimensions
Second Level Bedroom 10.00 Ft x 9.67 Ft
Second Level Bedroom 12.00 Ft x 7.00 Ft
Second Level 4pc Bathroom 5.00 Ft x 7.00 Ft
Second Level Laundry Room 6.67 Ft x 6.17 Ft
Second Level 4pc Bathroom 9.00 Ft x 7.00 Ft
Second Level Primary Bedroom 11.00 Ft x 9.83 Ft
Second Level Other 5.00 Ft x 5.67 Ft
Main Level 2pc Bathroom 5.00 Ft x 7.00 Ft
Main Level Dining Room 14.00 Ft x 5.67 Ft
Main Level Other 9.67 Ft x 3.83 Ft
Main Level Kitchen 12.67 Ft x 8.00 Ft
Main Level Great Room 24.00 Ft x 9.17 Ft
Main Level Foyer 4.83 Ft x 6.00 Ft

Land

Acreage No
Fence Type Partially Fenced
Land Amenities Park, Playground, Recreation Nearby, Schools, Shopping
Landscape Features Landscaped
Size Frontage 9.14 M
Size Irregular 3432.52
Size Total 3432.52 Sqft|0-4,050 Sqft
Size Total Text 3432.52 Sqft|0-4,050 Sqft
Zoning Description R-3

Parking

Detached Garage 2
Parking Pad

https://www.realtor.ca/real-estate/29321680/1975-mccaskill-drive-crossfield

Contact Us

Contact us for more information

Generating Captcha

    Your Name *

    Your Email *

    Your Contact Number *

    Subject

    Your Message

    Thank you for contacting us, one of our colleagues will contact you shortly. Thank you.

    Lakeridge Property International

    close-link