Search a Street, City, Province, RP Number or MLS® Number
 

1832 17 Avenue NW Calgary, Alberta t2m 0s2

No favourites found!

 

$3,150,000

MLS® Number: A2236306
4

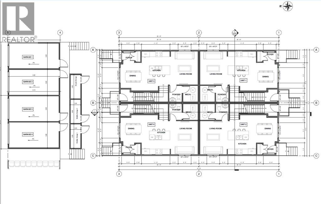
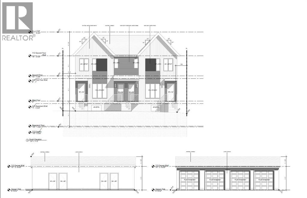
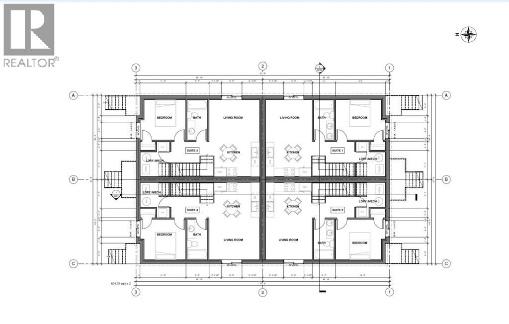
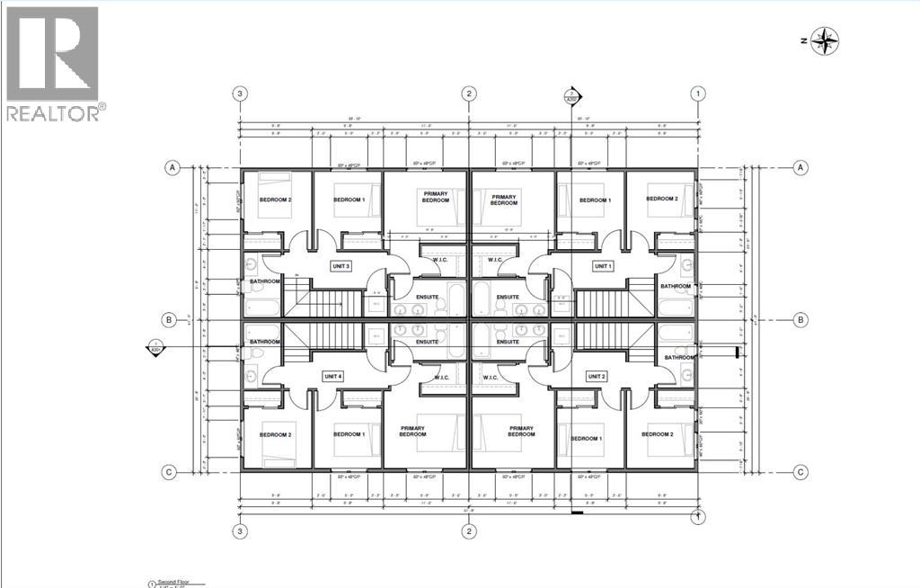
Enhance your real estate portfolio with this premier new construction rental development in Capitol Hill, one of Calgary’s most desirable inner-city communities. Scheduled for completion in the end of 2026, this purpose-built investment property consists of two buildings featuring a total of eight rental suites. Each building includes a spacious upper unit with three bedrooms and 2.5 bathrooms, as well as a well-appointed lower unit offering one bedroom with kitchen and full bathroom. A four-car detached garage with lane access provides added convenience and tenant appeal. Strategically located near downtown Calgary, 17th Avenue, parks, transit, and shopping, the property is ideally positioned to attract quality tenants and command above-average rents. Investors will appreciate the thoughtful design, superior construction, and long-term rental potential of these townhomes.The development is distinguished by its low-maintenance Hardy board exterior, high-efficiency HVAC systems, and durable finishes throughout—ensuring reduced operating costs and long-term durability. These modern, well-designed units are tailor-made for consistent cash flow and minimal upkeep. With estimated rents of $2,850 for upper suites and $1,450 for lower units Whether you're a seasoned investor or looking to diversify your holdings, this exceptional income-generating property offers the perfect blend of location, quality, and financial performance. For more information, contact us and take the next step toward securing a high-performing asset in Calgary’s thriving rental market. (id:59126)

Property Details

MLS® Number A2236306
Property Type Multi-family
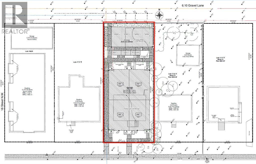
Community Name Capitol Hill
Parking Space Total 4
Plan 2864af

Building

Constructed Date 1950
Size Interior 4,462 Ft2
Total Finished Area 4462 Sqft
Type Multi-family

Land

Acreage No
Size Irregular 557.00
Size Total 557 M2|4,051 - 7,250 Sqft
Size Total Text 557 M2|4,051 - 7,250 Sqft
Zoning Description R-cg

https://www.realtor.ca/real-estate/28546832/1832-17-avenue-nw-calgary-capitol-hill

Contact Us

Contact us for more information

Generating Captcha

    Your Name *

    Your Email *

    Your Contact Number *

    Subject

    Your Message

    Thank you for contacting us, one of our colleagues will contact you shortly. Thank you.

    Lakeridge Property International

    close-link