Search a Street, City, Province, RP Number or MLS® Number
 

16816 49 St NW Edmonton, Alberta T5Y 4G9

No favourites found!

 

$799,900

MLS® Number: E4471633

A showstopping blend of bold architecture and modern luxury, 7 bedrooms & 4 baths, this exceptional home offers 2,291 sq. ft. of elevated living, with dramatic open-to-above ceilings and a striking porcelain slab feature wall with a sleek linear Fireplace. Built for big family living and unforgettable gatherings, the main floor features a stunning chef’s kitchen with custom cabinetry, premium finishes, SS appliances, a waterfall quartz island, and a walk-through spice kitchen w/gas range perfect for hosting and everyday life. A versatile main-floor bedroom/office adds flexibility, plus central AC. Upstairs, a spacious bonus room is ideal for family time, alongside 4 generous bedrooms, including a luxurious 5-pc primary ensuite w/ dual sinks, soaker tub, glass shower, heated floors and walk-in closet, and upper-floor laundry. The fully developed legal basement suite w/ separate side entrance offers 2 additional bedrooms ideal for extended family or added income in the sought-after community of Cy Becker. (id:59126)

Open House

This property has open houses!

April
25
Saturday
Starts at:

12:00 pm

Ends at:

2:00 pm

April
26
Sunday
Starts at:

12:00 pm

Ends at:

2:00 pm

Property Details

MLS® Number E4471633
Property Type Single Family
Neigbourhood Cy Becker
Amenities Near By Shopping
Features Flat Site, Closet Organizers, No Animal Home, No Smoking Home
Structure Deck

Building

Bathroom Total 4
Bedrooms Total 7
Amenities Ceiling - 9ft
Appliances Dishwasher, Garage Door Opener Remote(s), Garage Door Opener, Oven - Built-in, Microwave, Stove, Gas Stove(s), Window Coverings, Dryer, Two Refrigerators, Two Stoves, Two Washers
Basement Development Finished
Basement Features Suite
Basement Type Full (finished)
Constructed Date 2023
Construction Style Attachment Detached
Cooling Type Central Air Conditioning
Fire Protection Smoke Detectors
Fireplace Fuel Electric
Fireplace Present Yes
Fireplace Type Unknown
Heating Type Forced Air
Stories Total 2
Size Interior 2,292 Ft2
Type House

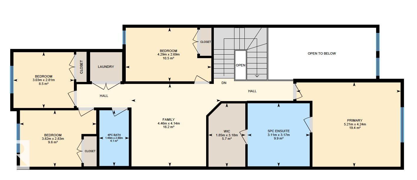
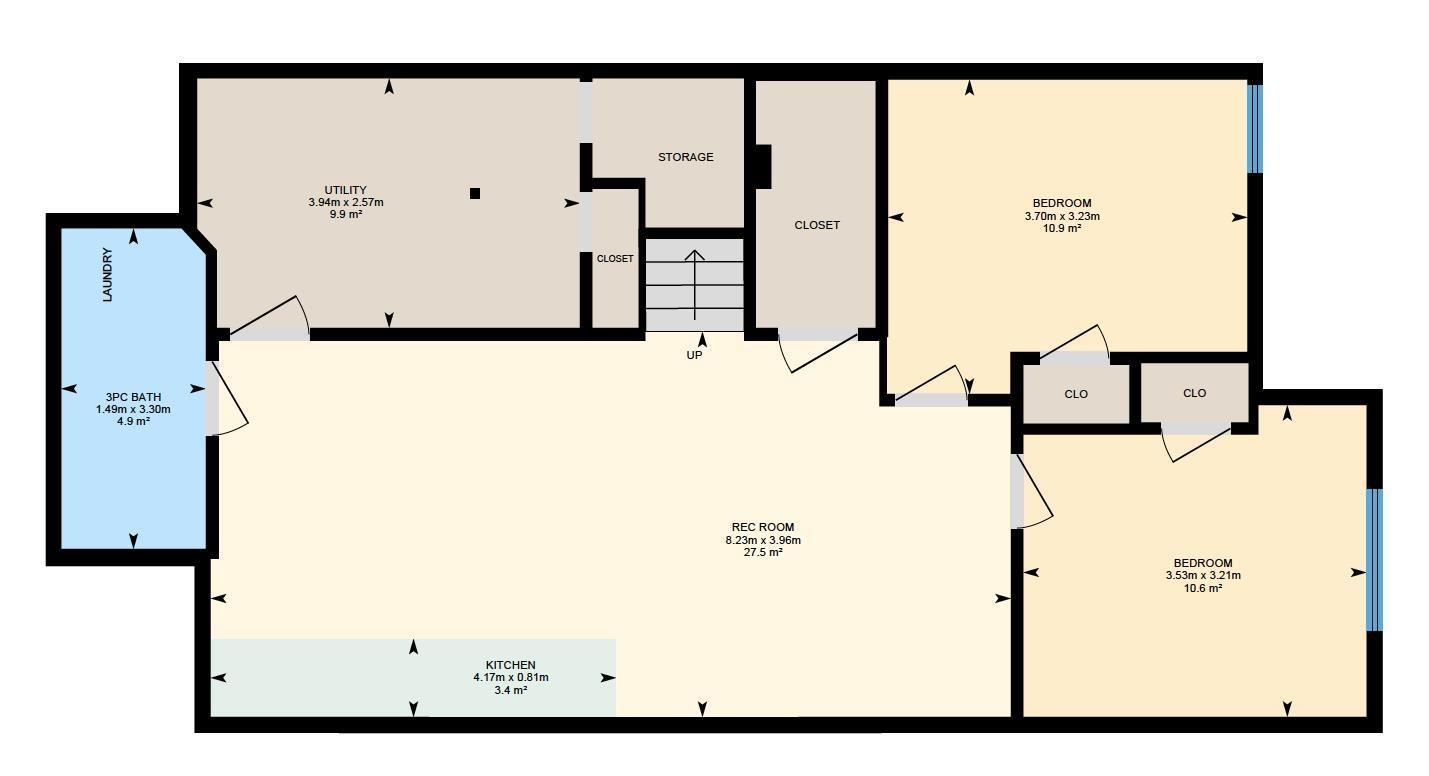
Rooms

Level Type Dimensions
Basement Bonus Room 4.14 m x 4.46 m
Basement Bedroom 6 3.23 m x 3.7 m
Basement Additional Bedroom Measurements not available x 3.5 m
Basement Second Kitchen 0.81 m x 4.17 m
Main Level Living Room 3.33 m x 5.25 m
Main Level Dining Room 3.65 m x 2.52 m
Main Level Kitchen 3.65 m x 4.14 m
Main Level Bedroom 5 3.06 m x 3.06 m
Upper Level Primary Bedroom 4.24 m x 5.21 m
Upper Level Bedroom 2 2.83 m x 3.82 m
Upper Level Bedroom 3 2.81 m x 3.03 m
Upper Level Bedroom 4 2.83 m x 3.82 m

Land

Acreage No
Fence Type Fence
Land Amenities Shopping
Size Irregular 324.04
Size Total 324.04 M2
Size Total Text 324.04 M2

Parking

Attached Garage

https://www.realtor.ca/real-estate/29306391/16816-49-st-nw-edmonton-cy-becker

Contact Us

Contact us for more information

Generating Captcha

    Your Name *

    Your Email *

    Your Contact Number *

    Subject

    Your Message

    Thank you for contacting us, one of our colleagues will contact you shortly. Thank you.

    Lakeridge Property International

    close-link