Search a Street, City, Province, RP Number or MLS® Number
 

14 East Church Street Erin, Ontario N0B 1T0

No favourites found!

 

$1,199,000

MLS® Number: X12770426

*Half acre conveniently in town* Located on a quiet, private cul-de-sac, this thoughtfully updated 3 bedroom, 4 bathroom Cape Cod-style home sits on a rare 1/2 acre lot offering beautiful views, space, character and a high level of finish throughout. At the heart of the home is a custom kitchen, designed for both function& impact. Quartz countertops throughout, a large statement island with reclaimed farmhouse wood detail, pot filler, farmhouse sink set the tone, while top-tier appliances including; Wolf gas range & drawer microwave, Fisher & Paykel refrigerator complete the space. The kitchen opens to the dining area with a striking brick feature wall, which then flows into a bright, inviting living room, creating an ideal layout for everyday living and entertaining. A sunroom just off the living room adds another warm, versatile space. The home offers 2 primary bedrooms, both with walk-in closets & ensuite bathrooms (in fact, every bedroom in the home has its own dedicated bathroom). The main-level primary suite includes a walkout to the deck & backyard, plus may also function as an office, den or secondary living space. Upstairs, the second primary suite features a larger ensuite with both a soaker tub & separate shower. Main-level laundry adds everyday convenience. A covered wraparound porch sets the tone on arrival, and the home benefits from thoughtful system updates, offering comfort and confidence moving forward. A paved driveway leads to a detached 32'x22' shop with 30-amp service, while the home also offers an attached oversized garage with direct access to the main level as well as a separate entrance/staircase to the spray-foamed basement, framed & ready to be finished to suit your needs - practical, efficient, and well thought out. A rare opportunity to own a refined, move-in-ready home on an oversized lot...right in town. (id:59126)

Property Details

MLS® Number X12770426
Property Type Single Family
Community Name Erin
Equipment Type None
Features Carpet Free
Parking Space Total 12
Rental Equipment Type None
Structure Porch, Deck, Patio(s)

Building

Bathroom Total 4
Bedrooms Above Ground 3
Bedrooms Total 3
Appliances Water Heater, Water Treatment, Water Meter, Dishwasher, Dryer, Microwave, Range, Stove, Washer, Window Coverings, Refrigerator
Basement Development Unfinished
Basement Features Separate Entrance
Basement Type Full, N/a, N/a (unfinished)
Construction Style Attachment Detached
Cooling Type Central Air Conditioning
Exterior Finish Brick Veneer, Aluminum Siding
Flooring Type Hardwood, Tile
Foundation Type Block
Half Bath Total 2
Heating Fuel Natural Gas
Heating Type Forced Air
Stories Total 2
Size Interior 2,000 - 2,500 Ft2
Type House
Utility Water Municipal Water

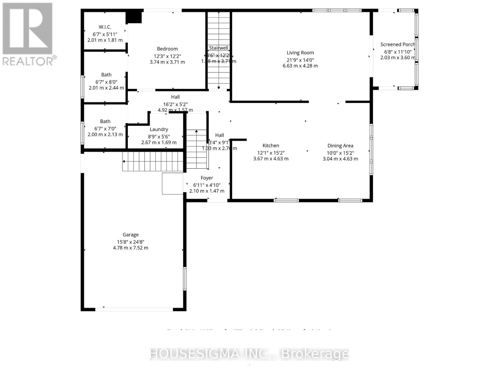
Rooms

Level Type Dimensions
Lower Level Recreational, Games Room 6.63 m x 4.56 m
Lower Level Recreational, Games Room 7.03 m x 4.35 m
Lower Level Recreational, Games Room 6.63 m x 4.35 m
Main Level Kitchen 3.67 m x 4.63 m
Main Level Living Room 6.63 m x 4.28 m
Main Level Dining Room 3.04 m x 4.63 m
Main Level Primary Bedroom 3.74 m x 3.71 m
Main Level Sunroom 2.03 m x 3.6 m
Main Level Laundry Room 2.67 m x 1.69 m
Upper Level Primary Bedroom 6.82 m x 5.64 m
Upper Level Bedroom 3 4.78 m x 3.31 m

Land

Acreage No
Sewer Septic System
Size Depth 255 Ft ,6 In
Size Frontage 79 Ft ,7 In
Size Irregular 79.6 X 255.5 Ft ; 1/2 Acre - 110ft. Wide At Rear
Size Total Text 79.6 X 255.5 Ft ; 1/2 Acre - 110ft. Wide At Rear|1/2 - 1.99 Acres

Parking

Attached Garage
Garage

Utilities

Cable Available
Electricity Installed

https://www.realtor.ca/real-estate/29338797/14-east-church-street-erin-erin

Contact Us

Contact us for more information

Generating Captcha

    Your Name *

    Your Email *

    Your Contact Number *

    Subject

    Your Message

    Thank you for contacting us, one of our colleagues will contact you shortly. Thank you.

    Lakeridge Property International

    close-link