Search a Street, City, Province, RP Number or MLS® Number
 

13 Clement Road Lanigan, Saskatchewan S0K 2M0

No favourites found!

 

$456,000

MLS® Number: SK021988
5 4

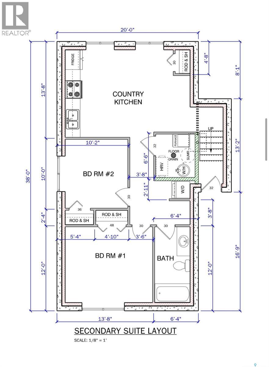
Rare investment opportunity — Legal 2-bedroom basement suite included. Buy with confidence in a growing community with increasing housing demand. Located in close proximity to the BHP Jansen Mine Project and the Aspen Power Station development, this property offers strong appeal for those working in the area as well as investors seeking long-term rental stability. Welcome to 13 Clement Road in Lanigan — a 1520 sq. ft. 2-storey home offering a functional and modern layout. The primary residence includes 3 bedrooms and 2.5 bathrooms, along with convenient second-floor laundry. The main floor features LVP flooring, and the second floor has carpet throughout except for tile flooring in the laundry and bathrooms. The kitchen includes soft-close cabinetry, quartz countertops with backsplash, and LED lighting throughout. A fully developed legal basement suite adds 2 additional bedrooms and a 4-piece bathroom, providing excellent suitability for rental accommodation or multi-generational living. The suite features LVP flooring, laminate countertops, a separate HRV and hot water tank, and electric baseboard heating. Home Features: • Total 5 Bedrooms and 3.5 Bathrooms (3 + 2 configuration) • Triple-pane windows • LED lighting throughout Exterior: Concrete walkway to front and side entries, 22’ x 22’ concrete parking pad with alley access, and a large lot offering room to customize landscaping. Attached front elevation image is a conceptual rendring only and may not reflect the final finished home. Progressive New Home Warranty included. Buyers may be eligible to apply for the Saskatchewan Secondary Suite Incentive (SSI) program; the builder will provide required docs. for the buyer’s application. Upgrades and Add-Ons Available: Garage package, deck, and landscaping options. Now available for Pre-Sale with an estimated completion of Spring/Summer 2026. Interior selections may be customized for early buyers. Contact your preferred REALTOR® for details. (id:59126)

Property Details

MLS® Number SK021988
Property Type Single Family
Features Rectangular

Building

Bathroom Total 4
Bedrooms Total 5
Appliances Dishwasher, Microwave, Humidifier, Hood Fan
Architectural Style 2 Level
Basement Type Full
Constructed Date 2026
Construction Style Attachment Detached
Heating Fuel Electric, Natural Gas
Heating Type Baseboard Heaters, Forced Air
Stories Total 2
Size Interior 1,520 Ft2
Type House

Rooms

Level Type Dimensions
Second Level Primary Bedroom 13' 8" x 13' 8"
Second Level Bedroom 11' 1" x 9' 4"
Second Level Bedroom 11' 1" x 9' 4"
Second Level Laundry Room 5' x 6'
Second Level 4pc Bathroom 8' 4" x 5'
Second Level 4pc Ensuite Bath 8' 9" x 5'
Basement Kitchen/dining Room 11' 6" x 17' 8"
Basement 4pc Bathroom 10' 8" x 5'
Basement Bedroom 9' 6" x 8' 10"
Basement Bedroom 10' 8" x 12' 4"
Basement Other Measurements not available
Main Level Living Room 15' 8" x 12' 5"
Main Level Foyer 6' x 6' 6"
Main Level Kitchen 14' 6" x 10' 3"
Main Level Dining Room 13' 6" x 8' 6"
Main Level 2pc Bathroom 5' 6" x 6' 4"
Main Level Other Measurements not available

Land

Acreage No
Size Frontage 60 Ft
Size Irregular 7200.00
Size Total 7200 Sqft
Size Total Text 7200 Sqft

Parking

Parking Pad
None
Parking Space(s) 2

https://www.realtor.ca/real-estate/29057787/13-clement-road-lanigan

Contact Us

Contact us for more information

Generating Captcha

    Your Name *

    Your Email *

    Your Contact Number *

    Subject

    Your Message

    Thank you for contacting us, one of our colleagues will contact you shortly. Thank you.

    Lakeridge Property International

    close-link