Search a Street, City, Province, RP Number or MLS® Number
 

128 Setonstone Gardens SE Calgary, Alberta T3M 3V6

No favourites found!

 

$669,500

MLS® Number: A2286474

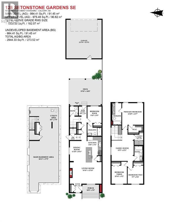
Welcome to this stunning and highly customized Brookfield 2-storey home in the vibrant, amenity-rich community of Seton — where modern design meets timeless comfort. Showcasing nearly 2,000 square feet above grade, this exceptional residence has been thoughtfully upgraded and enhanced with personalized touches that elevate its style and function. From the moment you arrive, the home’s inviting exterior, accented by rich colours, charming front porch, and architectural details, hints at the sophistication that awaits inside. Step into the main living area, where 9-foot ceilings and premium finishes create a sense of openness and warmth. The living room immediately draws your attention with its floor-to-ceiling shiplap feature wall, floating shelves, and a striking marble-inspired fireplace—a perfect blend of modern elegance and cozy character. Flowing seamlessly from the living space, the Chef’s Gourmet kitchen impresses with full-height cabinetry with rise and crown moulding, built-in wall oven and microwave, sleek cooktop with a chimney-style hood fan, and an expansive quartz island with a flush eating bar. The Arctic white tile backsplash and Blanco undermount sink add a refined finishing touch, while upgraded Cartwright lighting fixtures illuminate the space with designer flair. The dining area, brightened by an additional side window, creates the perfect setting for family meals and entertaining alike. Just beyond, a private main floor bedroom with a full three-piece ensuite featuring a glass-enclosed walk-in shower and floor-to-ceiling tile offers versatility for guests, multi-generational living, or a home office. The rear entry door, framed with encased glass, allows sunlight to sweep through the home and connect the indoors to the outdoors effortlessly. Upstairs, discover three additional spacious bedrooms, each enhanced with custom feature walls. The primary suite is a retreat of its own, showcasing a five-piece spa-inspired ensuite with dual undermount sin ks, quartz counters, and a walk-in closet. The centralized family room—perfect for movie nights—cleverly separates the primary suite from the secondary bedrooms, adding privacy and balance to the upper floor. A well-appointed laundry room with built-in counter and storage and a full bath complete this level. The lower level has been thoughtfully roughed-in for a future secondary suite (subject to approval and permitting by the city/municipality), featuring 9-foot foundation walls, rough-ins for a second laundry, kitchen plumbing, and full bathroom—a smart investment for future flexibility. Modern efficiency features include triple-glazed windows, an 80-gallon water tank, smart thermostat, Heat Recovery Ventilator, and knockdown ceilings throughout. Step outside to a beautifully finished backyard, complete with a massive covered deck—ideal for entertaining year-round—and an upgraded double detached oversized garage. (id:59126)

Property Details

MLS® Number A2286474
Property Type Single Family
Community Name Seton
Amenities Near By Park, Playground, Shopping
Features Back Lane, Pvc Window, Parking
Parking Space Total 2
Plan 2311056
Structure Deck

Building

Bathroom Total 4
Bedrooms Above Ground 4
Bedrooms Total 4
Appliances Washer, Refrigerator, Dishwasher, Stove, Dryer, Microwave Range Hood Combo, Oven - Built-in
Basement Development Unfinished
Basement Features Separate Entrance
Basement Type Full (unfinished)
Constructed Date 2023
Construction Material Wood Frame
Construction Style Attachment Detached
Cooling Type None, See Remarks
Exterior Finish Stone, Vinyl Siding
Fireplace Present Yes
Fireplace Total 1
Flooring Type Carpeted, Tile, Vinyl Plank
Foundation Type Poured Concrete
Half Bath Total 1
Heating Fuel Natural Gas
Heating Type Forced Air
Stories Total 2
Size Interior 1,960 Ft2
Total Finished Area 1959.89 Sqft
Type House

Rooms

Level Type Dimensions
Basement Furnace 8.42 Ft x 7.42 Ft
Main Level Living Room 18.83 Ft x 12.83 Ft
Main Level Kitchen 15.00 Ft x 9.33 Ft
Main Level Dining Room 11.83 Ft x 6.92 Ft
Main Level Foyer 5.00 Ft x 4.50 Ft
Main Level Bedroom 9.83 Ft x 8.42 Ft
Main Level 3pc Bathroom 8.25 Ft x 4.83 Ft
Main Level Other 5.42 Ft x 4.75 Ft
Main Level Other 3.92 Ft x 3.17 Ft
Main Level 2pc Bathroom 5.42 Ft x 4.83 Ft
Upper Level Family Room 13.25 Ft x 12.08 Ft
Upper Level Primary Bedroom 12.83 Ft x 12.58 Ft
Upper Level Other 8.92 Ft x 5.00 Ft
Upper Level 5pc Bathroom 12.83 Ft x 5.50 Ft
Upper Level Bedroom 9.58 Ft x 9.33 Ft
Upper Level Bedroom 10.83 Ft x 9.17 Ft
Upper Level Laundry Room 6.17 Ft x 5.25 Ft
Upper Level 4pc Bathroom 8.92 Ft x 4.83 Ft

Land

Acreage No
Fence Type Fence
Land Amenities Park, Playground, Shopping
Size Depth 35.42 M
Size Frontage 8.02 M
Size Irregular 284.00
Size Total 284 M2|0-4,050 Sqft
Size Total Text 284 M2|0-4,050 Sqft
Zoning Description R-g

Parking

Detached Garage 2
Oversize

https://www.realtor.ca/real-estate/29361649/128-setonstone-gardens-se-calgary-seton

Contact Us

Contact us for more information

Generating Captcha

    Your Name *

    Your Email *

    Your Contact Number *

    Subject

    Your Message

    Thank you for contacting us, one of our colleagues will contact you shortly. Thank you.

    Lakeridge Property International

    close-link