Search a Street, City, Province, RP Number or MLS® Number
 

109 Corner Glen Green Ne Calgary, Alberta T3N 2P7

No favourites found!

 

$699,000

MLS® Number: A2291705
3 3 4

Stop settling for "almost perfect" and start building your dream. This is a rare opportunity to SECURE A PREMIUM, OVERSIZED PIE-SHAPED LOT IN THE VIBRANT COMMUNITY OF CORNERSTONE. With an IMPRESSIVE REAR WIDTH OF APPROXIMATELY 57 FEET, you finally have the space to create the sprawling backyard you’ve always wanted. Whether you have a vision from scratch or want a head start, we provide the flexibility to ensure your home fits your lifestyle perfectly. START WITH OUR POPULAR PRE-PLANNED MODELS AND MODIFY THEM TO SUIT YOUR FAMILY’S SPECIFIC NEEDS. All our pre-planned options already feature popular and much needed Main Floor Bedroom and Full Bathroom, Upstairs Bonus Room and customizations can be done to include Spice Kitchen, Front Facing Bonus Room and much more! THIS LOT IS JUST WALKING DISTANCE TO AN EXISTING PLAYGROUND and a few minutes from the future school site and the upcoming community recreation center. Cornerstone offers an effortless access to Country Hills Blvd and Stoney Trail, keeping the rest of Calgary within easy reach. Discuss with us about your need for a finished basement legal suite (subject to permits and City of Calgary approval). Don't miss this opportunity of building your dream home on a not so commonly available pie-shaped lot. (id:59126)

Property Details

MLS® Number A2291705
Property Type Single Family
Community Name Cornerstone
Amenities Near By Airport, Park, Playground
Features Other, No Animal Home, No Smoking Home, Gas Bbq Hookup
Parking Space Total 4
Plan 2410507
Structure Deck

Building

Bathroom Total 3
Bedrooms Above Ground 3
Bedrooms Total 3
Amenities Other
Appliances Washer, Refrigerator, Range - Electric, Dishwasher, Dryer, Microwave Range Hood Combo
Basement Development Unfinished
Basement Features Separate Entrance
Basement Type Full (unfinished)
Constructed Date 2026
Construction Material Poured Concrete, Wood Frame
Construction Style Attachment Detached
Cooling Type None
Exterior Finish Concrete, Stone, Vinyl Siding
Fire Protection Smoke Detectors
Fireplace Present Yes
Fireplace Total 1
Flooring Type Carpeted, Ceramic Tile, Vinyl Plank
Foundation Type Poured Concrete
Half Bath Total 1
Heating Fuel Natural Gas
Heating Type Central Heating
Stories Total 2
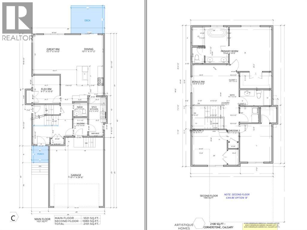
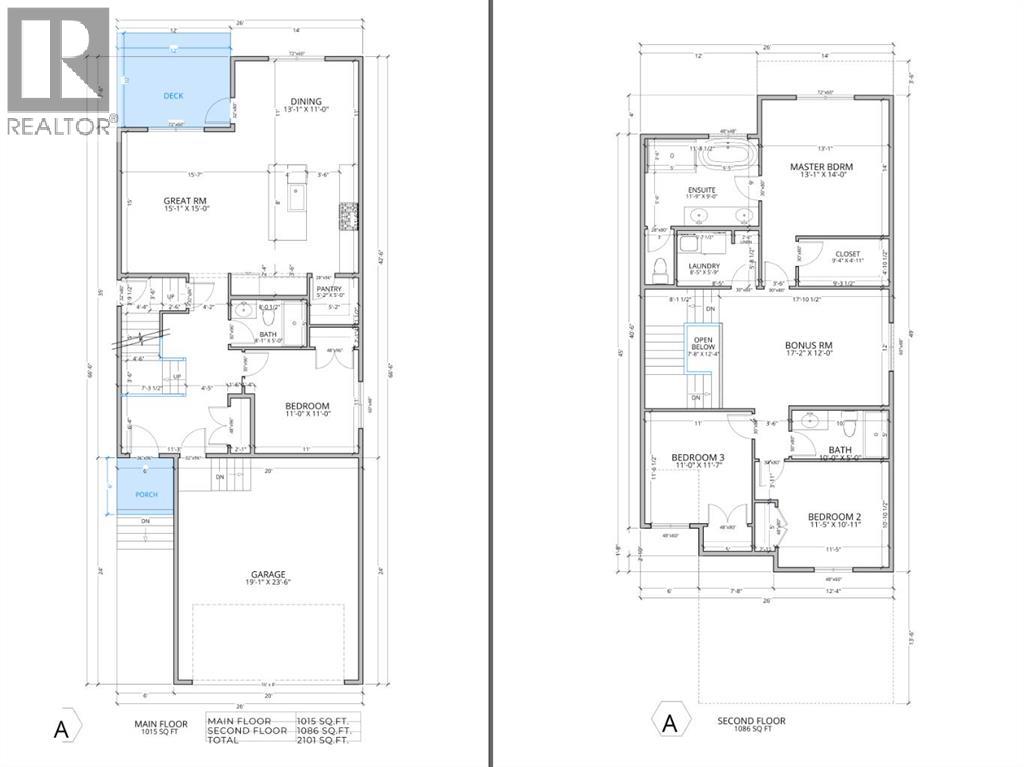
Size Interior 2,141 Ft2
Total Finished Area 2141.36 Sqft
Type House

Rooms

Level Type Dimensions
Main Level 2pc Bathroom 8.08 Ft x 5.00 Ft
Main Level Great Room 15.08 Ft x 15.00 Ft
Main Level Dining Room 13.08 Ft x 11.00 Ft
Upper Level Primary Bedroom 13.08 Ft x 14.00 Ft
Upper Level Bonus Room 17.17 Ft x 12.00 Ft
Upper Level 5pc Bathroom 11.75 Ft x 9.00 Ft
Upper Level Bedroom 11.00 Ft x 11.58 Ft
Upper Level Bedroom 11.42 Ft x 10.92 Ft
Upper Level 3pc Bathroom 10.00 Ft x 5.00 Ft

Land

Acreage No
Fence Type Not Fenced
Land Amenities Airport, Park, Playground
Size Depth 36.29 M
Size Frontage 9.76 M
Size Irregular 4606.95
Size Total 4606.95 Sqft|4,051 - 7,250 Sqft
Size Total Text 4606.95 Sqft|4,051 - 7,250 Sqft
Zoning Description R-g

Parking

Attached Garage 2

https://www.realtor.ca/real-estate/29457361/109-corner-glen-green-ne-calgary-cornerstone

Contact Us

Contact us for more information

Generating Captcha

    Your Name *

    Your Email *

    Your Contact Number *

    Subject

    Your Message

    Thank you for contacting us, one of our colleagues will contact you shortly. Thank you.

    Lakeridge Property International

    close-link