Search a Street, City, Province, RP Number or MLS® Number
 

411 28 Avenue NW Calgary, Alberta T2M 2K7

No favourites found!

 

$1,249,000

MLS® Number: A2286864
5 4 2

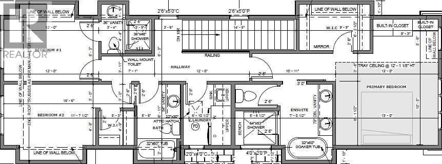
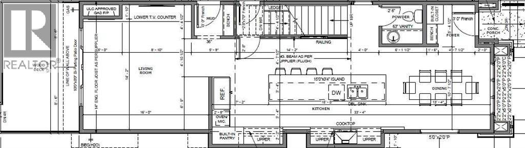
Situated on one of the area’s most charming, family-friendly streets, beautifully lined with mature oak trees, this location delivers the perfect blend of inner-city convenience and neighborhood warmth. Exceptional pre-sale opportunity in the highly sought-after community of Mount Pleasant! Offering over 2,800 sq ft of thoughtfully designed living space, this home features a fully legal basement suite with separate entrance and private laundry — perfect for rental income, mortgage assistance, or multi-generational living. The bright main floor features 11-ft ceilings, wide plank hardwood floors, and a designer kitchen with a dramatic 14-ft waterfall island, quartz countertops, white oak shaker cabinetry, plaster hood fan, premium appliances, and modern gold/black accents. The spacious living room showcases a custom brick gas fireplace and built-ins, while the mudroom offers functional storage.Upstairs offers 9-ft ceilings and a stunning primary retreat with HUGE vaulted ceilings, and a spa-inspired 5-piece ensuite with in-floor heat and steam shower rough-in. Two additional bedrooms with walk-in closets and a full laundry room complete the level.The legal basement suite includes a full kitchen, living area, 2 bedrooms, bath, and separate laundry. Additional features include dual furnaces with HRVs, A/C rough-in, ceiling speakers, security rough-in, and custom closets.Located steps to Confederation Park and minutes to SAIT, UofC, hospitals, LRT, and downtown.Call today for details! (id:59126)

Property Details

MLS® Number A2286864
Property Type Single Family
Community Name Mount Pleasant
Amenities Near By Park, Playground, Recreation Nearby, Schools, Shopping
Features See Remarks, Back Lane, No Animal Home, No Smoking Home, Level, Gas Bbq Hookup
Parking Space Total 2
Plan 2617ag
Structure Deck

Building

Bathroom Total 4
Bedrooms Above Ground 3
Bedrooms Below Ground 2
Bedrooms Total 5
Appliances Refrigerator, Gas Stove(s), Dishwasher, Microwave, Hood Fan, See Remarks, Garage Door Opener, Washer & Dryer
Basement Development Finished
Basement Features Suite
Basement Type Full (finished)
Constructed Date 2026
Construction Material Wood Frame
Construction Style Attachment Detached
Cooling Type See Remarks
Exterior Finish See Remarks
Fireplace Present Yes
Fireplace Total 1
Flooring Type Carpeted, Hardwood
Foundation Type Poured Concrete
Half Bath Total 1
Heating Type Forced Air
Stories Total 2
Size Interior 1,960 Ft2
Total Finished Area 1960.25 Sqft
Type House

Rooms

Level Type Dimensions
Second Level 5pc Bathroom Measurements not available
Second Level 4pc Bathroom Measurements not available
Second Level Primary Bedroom 17.00 Ft x 13.00 Ft
Second Level Bedroom 16.50 Ft x 8.42 Ft
Second Level Bedroom 12.00 Ft x 8.25 Ft
Main Level 2pc Bathroom Measurements not available
Unknown 4pc Bathroom Measurements not available
Unknown Bedroom 17.00 Ft x 10.00 Ft
Unknown Bedroom 11.00 Ft x 8.00 Ft

Land

Acreage No
Fence Type Fence
Land Amenities Park, Playground, Recreation Nearby, Schools, Shopping
Landscape Features Lawn
Size Depth 36.55 M
Size Frontage 7.62 M
Size Irregular 3000.00
Size Total 3000 Sqft|0-4,050 Sqft
Size Total Text 3000 Sqft|0-4,050 Sqft
Zoning Description Rc-g

Parking

Detached Garage 2

https://www.realtor.ca/real-estate/29370756/411-28-avenue-nw-calgary-mount-pleasant

Contact Us

Contact us for more information

Generating Captcha

    Your Name *

    Your Email *

    Your Contact Number *

    Subject

    Your Message

    Thank you for contacting us, one of our colleagues will contact you shortly. Thank you.

    Lakeridge Property International

    close-link