Search a Street, City, Province, RP Number or MLS® Number
 

2709 18 Street NW Calgary, Alberta T2T 1E2

No favourites found!

 

$1,167,700

MLS® Number: A2279872
4 4 2

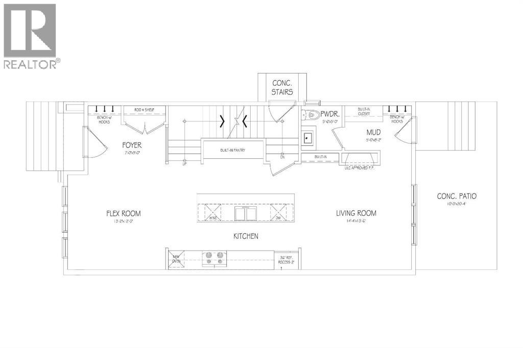
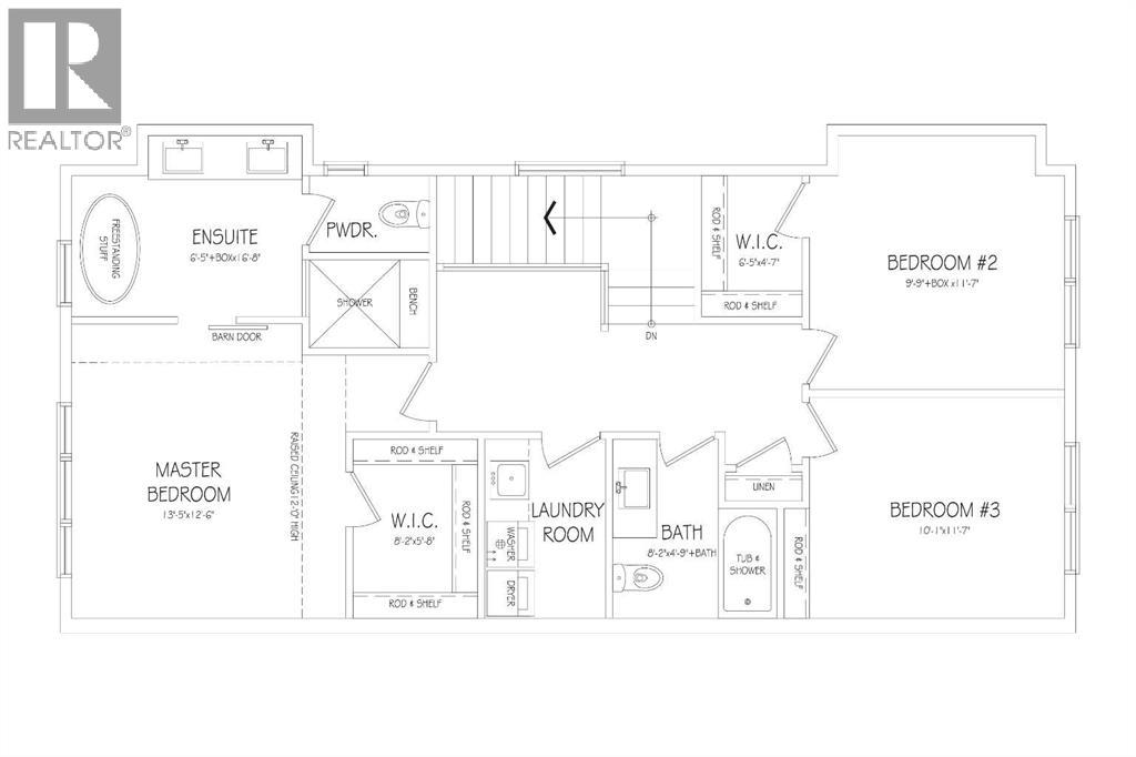
This modern semi-detached infill home in Capitol Hill Calgary makes a strong first impression with its timeless exterior, oversized windows, and bright, light-filled interior. Designed for both style and everyday function, this NON-SUITED inner-city home offers the perfect balance of open-concept living with clearly defined spaces, creating a polished and comfortable layout ideal for families, professionals, or those looking to upgrade in a prime location.With 4 bedrooms, 3.5 bathrooms, and a fully finished basement, there is room to entertain, unwind, and grow over time. The front entry opens into a proper foyer with built-in storage, offering the organization and practicality buyers love in a modern Calgary infill.Just off the foyer is a dedicated formal dining room, ideal for hosting family dinners or entertaining guests, filled with natural light while remaining connected to the rest of the main floor.At the heart of the home, the kitchen is refined and highly functional with quartz countertops, a full-height backsplash, and sleek modern cabinetry. The premium appliance package supports serious cooking and everyday convenience, including a gas cooktop, wall oven, French door refrigerator, dishwasher, and space for a beverage fridge. The oversized island provides ample prep space and seating, making it perfect for gatherings and open-concept entertaining.The living room is anchored by a striking full-height gas fireplace and framed by large rear windows overlooking the yard. Sliding patio doors lead to the outdoor space, creating seamless indoor-outdoor living, ideal for summer evenings and weekend relaxation.A discreet powder room and a thoughtfully designed mudroom with built-in storage complete the main level, supporting busy lifestyles with smart organization.Upstairs, the primary suite feels calm and private, featuring a walk-in closet and a spa-inspired ensuite with a freestanding tub, double vanity, separate shower, and private water closet. Tw o additional bedrooms are generously sized and share a full bath. Upstairs laundry adds everyday convenience and keeps routines effortless.The fully finished basement expands the home’s versatility with a large recreation area, plus a dedicated home theatre, gym, games room, or office space. A stylish wet bar enhances entertaining potential, while the fourth bedroom and full bathroom make this level ideal for guests, teenagers, or multi-generational living.Located on a quiet, tree-lined street, this home is in one of the most desirable inner-city Calgary neighbourhoods. Enjoy being steps from Confederation Park, minutes to the University of Calgary, SAIT, North Hill Centre, local cafés, transit, and a short commute to downtown Calgary.With its modern design, walkability, and strong community feel, Capitol Hill remains one of Calgary’s most sought-after infill locations. (id:59126)

Property Details

MLS® Number A2279872
Property Type Single Family
Community Name Capitol Hill
Amenities Near By Golf Course, Park, Playground, Recreation Nearby, Schools, Shopping
Community Features Golf Course Development
Features Back Lane, Wet Bar, Closet Organizers, Gas Bbq Hookup
Parking Space Total 2
Plan 6574aw

Building

Bathroom Total 4
Bedrooms Above Ground 3
Bedrooms Below Ground 1
Bedrooms Total 4
Appliances Cooktop - Gas, Dishwasher, Oven, Microwave, Hood Fan, Garage Door Opener
Basement Development Finished
Basement Type Full (finished)
Constructed Date 2026
Construction Material Wood Frame
Construction Style Attachment Semi-detached
Cooling Type See Remarks
Exterior Finish Composite Siding, Stucco
Fireplace Present Yes
Fireplace Total 1
Flooring Type Carpeted, Hardwood, Tile
Foundation Type Poured Concrete
Half Bath Total 1
Heating Type Forced Air
Stories Total 2
Size Interior 1,891 Ft2
Total Finished Area 1891.25 Sqft
Type Duplex

Rooms

Level Type Dimensions
Basement Bedroom 13.00 Ft x 13.00 Ft
Basement Recreational, Games Room 13.00 Ft x 15.00 Ft
Basement Exercise Room 15.50 Ft x 14.83 Ft
Basement 4pc Bathroom Measurements not available
Basement Furnace 6.00 Ft x 11.67 Ft
Main Level Living Room 14.33 Ft x 13.50 Ft
Main Level Dining Room 13.17 Ft x 12.00 Ft
Main Level Kitchen 13.00 Ft x 16.00 Ft
Main Level Other 5.00 Ft x 8.17 Ft
Main Level 2pc Bathroom Measurements not available
Upper Level Primary Bedroom 13.42 Ft x 12.50 Ft
Upper Level Other 8.17 Ft x 5.67 Ft
Upper Level Bedroom 9.75 Ft x 11.58 Ft
Upper Level Bedroom 10.08 Ft x 11.58 Ft
Upper Level Laundry Room 8.17 Ft x 5.50 Ft
Upper Level 4pc Bathroom Measurements not available
Upper Level 5pc Bathroom Measurements not available

Land

Acreage No
Fence Type Fence
Land Amenities Golf Course, Park, Playground, Recreation Nearby, Schools, Shopping
Size Depth 35.8 M
Size Frontage 7.62 M
Size Irregular 273.00
Size Total 273 M2|0-4,050 Sqft
Size Total Text 273 M2|0-4,050 Sqft
Zoning Description R-cg

Parking

Detached Garage 2

https://www.realtor.ca/real-estate/29308974/2709-18-street-nw-calgary-capitol-hill

Contact Us

Contact us for more information

Generating Captcha

    Your Name *

    Your Email *

    Your Contact Number *

    Subject

    Your Message

    Thank you for contacting us, one of our colleagues will contact you shortly. Thank you.

    Lakeridge Property International

    close-link