Search a Street, City, Province, RP Number or MLS® Number
 

602, 3720 Quesnay Wood Drive SW Calgary, Alberta T3E 7H5

No favourites found!

 

$679,500

Maintenance, Common Area Maintenance, Reserve Fund Contributions

$372.47 Monthly

MLS® Number: A2291599

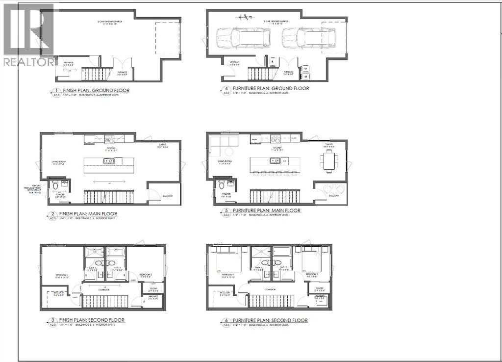
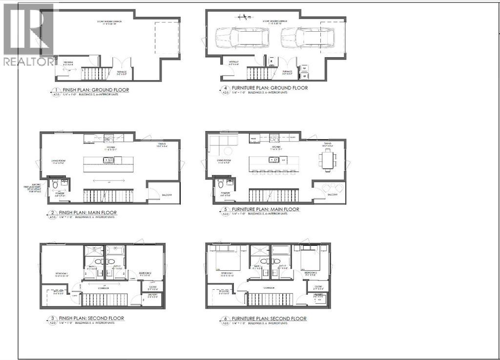
Luxurious Townhome in Currie Barracks - A Legacy of DistinctionONE OF 30 LUXURY TOWN HOMES IN CURRIE BARRACKS. Welcome to an exquisite townhome nestled within the prestigious Nichola community in Currie Barracks. This master-planned intercity neighborhood is just 7 minutes from downtown, providing effortless access to an array of exceptional dining, shopping, and cultural attractions.Spanning 1195.26 sq. ft., this thoughtfully designed residence features two bedrooms, 2.5 baths, and a nice open concept floor plan, ensuring ample space for both relaxation and productivity. The home boasts 9-foot ceilings on every level, creating a sense of grandeur and openness that invites natural light to flow seamlessly throughout.The heart of the home is a gourmet kitchen, complete with an OVERSIZED GRAND ISLAND (13’0) complete with STYLISH PREMIUM QUARTZ BACKSPLASH & COUNTER TOPS. Ideal for culinary enthusiasts and entertaining guests. Luxurious finishes abound, including PREMIUM MILLWORK, knockdown ceilings, and a sophisticated STUCCO EXTERIOR accented by elegant brick veneer. The bathrooms elevate the home's luxury with MIRRORS THAT STRETCH TO THE CEILING, enhancing the sense of space and sophistication. Thoughtfully equipped with rough-ins for AIR CONDITIONING & SOLAR PANEL, and an ATTACHED TWO CAR GARAGE, the home also includes upgrade options for convenient EV CHARGING rough-ins for modern convenience. Step outside to enjoy serene outdoor living on the DURADEK-FINSHED BALCONIES or gather around the IMPRESSIVE 42” LANDSCAPE FIREPLACE for cozy evenings under the stars. The residence is outfitted with luxurious finishes such as 8-FOOT DOORS, 4-INCH. BASEBOARD, 3” CASINGS, ensuring a refined aesthetic throughout. Buyers can also choose from TWO ELEGANT PALLETTES; THE CALIGA OR LAMBENT allowing for personalization to match your style.Living in Currie Barracks means embracing a community that honors the legacy of Canadian heros such as Captain Nicola Kathleen Sar ah Goddard, after whom the NICHOLA TOWNHOMES project is named. This historic neighborhood beautifully blends tradition with modernity, offering immediate access to a nearby dog park, top-tier charter and private schools, and Mount Royal University—making it ideal for families and professionals alike.Indulge in a rich tapestry of cultural experiences, from art galleries to fine dining, all just moments away. This luxurious townhome is more than just a residence; it embodies a lifestyle of elegance, community, and honor.Don’t miss the opportunity to make this remarkable home yours. Schedule a private viewing today and immerse yourself in the luxury and legacy that awaits at Nichola (id:59126)

Open House

This property has open houses!

May
30
Saturday
Starts at:

12:00 pm

Ends at:

5:00 pm

PLEASE STOP BY THE PRESENTATION CENTRE AT 3720 Quesnay Wood Drive SW

May
31
Sunday
Starts at:

12:00 pm

Ends at:

5:00 pm

PLEASE STOP BY THE PRESENTATION CENTRE AT 3720 Quesnay Wood Drive SW

Property Details

MLS® Number A2291599
Property Type Single Family
Community Name Currie Barracks
Amenities Near By Park, Playground, Schools, Shopping
Features Closet Organizers, No Animal Home, No Smoking Home, Parking
Parking Space Total 2

Building

Bathroom Total 3
Bedrooms Above Ground 2
Bedrooms Total 2
Appliances Refrigerator, Stove, Oven, Microwave, Washer & Dryer
Basement Type None
Constructed Date 2027
Construction Style Attachment Attached
Cooling Type See Remarks
Exterior Finish Brick, Stucco
Fireplace Present Yes
Fireplace Total 1
Flooring Type Carpeted, Tile, Vinyl Plank
Foundation Type See Remarks
Half Bath Total 1
Heating Fuel Natural Gas
Heating Type Central Heating
Stories Total 3
Size Interior 1,195 Ft2
Total Finished Area 1195 Sqft
Type Row / Townhouse

Rooms

Level Type Dimensions
Second Level Dining Room 10.33 Ft x 11.83 Ft
Second Level Kitchen 12.67 Ft x 16.58 Ft
Second Level Living Room 9.67 Ft x 7.42 Ft
Second Level 2pc Bathroom 6.00 Ft x 5.08 Ft
Third Level Bedroom 9.25 Ft x 9.67 Ft
Third Level Laundry Room 3.42 Ft x 5.00 Ft
Third Level 3pc Bathroom 9.25 Ft x 5.00 Ft
Third Level 3pc Bathroom 9.25 Ft x 5.00 Ft
Third Level Primary Bedroom 10.17 Ft x 10.92 Ft
Lower Level Foyer 6.25 Ft x 6.33 Ft

Land

Acreage No
Fence Type Not Fenced
Land Amenities Park, Playground, Schools, Shopping
Landscape Features Landscaped
Size Total Text Unknown
Zoning Description Dc

Parking

Attached Garage 2

https://www.realtor.ca/real-estate/29442375/602-3720-quesnay-wood-drive-sw-calgary-currie-barracks

Contact Us

Contact us for more information

Generating Captcha

    Your Name *

    Your Email *

    Your Contact Number *

    Subject

    Your Message

    Thank you for contacting us, one of our colleagues will contact you shortly. Thank you.

    Lakeridge Property International

    close-link