Search a Street, City, Province, RP Number or MLS® Number
 

20536 Sheriff King Street Sw Calgary, Alberta T2X 4B1

No favourites found!

 

$499,900

MLS® Number: A2290618
3 3 2

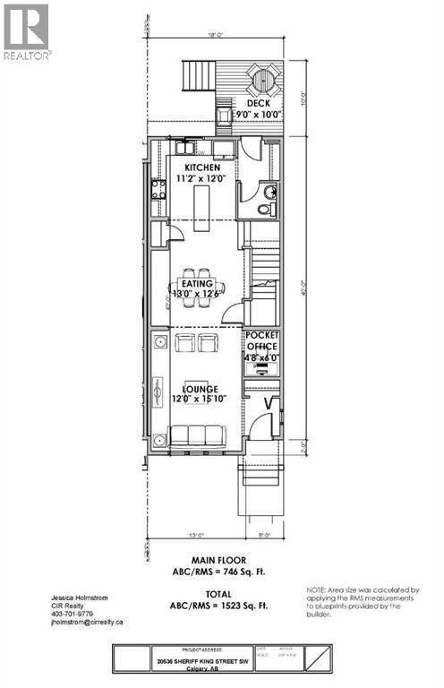
END-UNIT TOWNHOME WITH NO CONDO FEES — this unit is built for a true lock-and-leave lifestyle—clean, efficient, and intentionally designed so your life fits without friction. No projects, no placeholder spaces, no “we’ll deal with that later.” And yes — WINDOW COVERINGS ARE ALREADY INCLUDED, because move-in should actually mean move-in.The main floor gets straight to the point. A well-scaled kitchen delivers QUARTZ COUNTERS, 42" UPPER CABINETRY, A BUILT-IN MICROWAVE, CHIMNEY-STYLE HOOD FAN, and a Silgranit undermount kitchen sink—details that feel elevated without trying to impress anyone but you. The dining and living areas flow naturally, making everyday routines feel easy and entertaining feel unforced. And then there’s the POCKET OFFICE—quietly one of the smartest decisions in the home. Not a corner, not a compromise. A DEDICATED SPACE for work-from-home days, admin, studying, or simply keeping life organized without spreading it across the kitchen table. Upstairs, three bedrooms are arranged around a CENTRAL BONUS ROOM, creating separation without wasted space. The primary bedroom includes a private ensuite and walk-in closet, while upper-floor laundry (WASHER AND DRYER INCLUDED) keeps daily life contained where it belongs. The unfinished basement with BATHROOM ROUGH-IN gives you flexibility for the future—storage now, options later—without forcing decisions before you’re ready. REAR LANE ACCESS WITH A GRAVEL PARKING PAD keeps ownership simple and maintenance low. Belmont keeps you close to what matters without the sprawl: NEW PARKS AND PLAYGROUNDS ALREADY IN PLACE, the future library and field house on the way, and quick access to both Macleod Trail and the Ring Road. Whether you’re stepping out for coffee or staying in for a quiet weekend, the balance here just works—modern, manageable, and ready for THE KIND OF OWNERSHIP THAT DOESN’T COME WITH MONTHLY FEES. Come see how naturally this one fits!• PLEASE NOTE: Photos are of a DIFFERENT Spec Home of t he same model – fit and finish may differ. Interior selections and floorplans shown in photos. Kitchen appliances are included, and will be installed prior to possession. (id:59126)

Property Details

MLS® Number A2290618
Property Type Single Family
Community Name Belmont
Amenities Near By Park, Playground, Schools, Shopping
Features Back Lane
Parking Space Total 2
Plan 2410210
Structure Deck

Building

Bathroom Total 3
Bedrooms Above Ground 3
Bedrooms Total 3
Appliances Refrigerator, Range - Electric, Dishwasher, Microwave, Hood Fan, Window Coverings, Washer/dryer Stack-up
Basement Development Unfinished
Basement Type Full (unfinished)
Constructed Date 2026
Construction Material Wood Frame
Construction Style Attachment Attached
Cooling Type None
Exterior Finish Vinyl Siding
Fire Protection Smoke Detectors
Flooring Type Carpeted, Vinyl Plank
Foundation Type Poured Concrete
Half Bath Total 1
Heating Fuel Natural Gas
Heating Type Forced Air, Other
Stories Total 2
Size Interior 1,523 Ft2
Total Finished Area 1523 Sqft
Type Row / Townhouse

Rooms

Level Type Dimensions
Main Level Other Measurements not available
Main Level Living Room 15.83 Ft x 12.00 Ft
Main Level Office 6.00 Ft x 4.67 Ft
Main Level Dining Room 12.50 Ft x 13.00 Ft
Main Level Kitchen 12.00 Ft x 11.17 Ft
Main Level Pantry Measurements not available
Main Level 2pc Bathroom Measurements not available
Main Level Other Measurements not available
Upper Level Bonus Room 11.50 Ft x 12.00 Ft
Upper Level Primary Bedroom 13.00 Ft x 11.67 Ft
Upper Level Other Measurements not available
Upper Level 3pc Bathroom Measurements not available
Upper Level 3pc Bathroom Measurements not available
Upper Level Bedroom 10.00 Ft x 8.33 Ft
Upper Level Bedroom 10.00 Ft x 8.33 Ft
Upper Level Laundry Room Measurements not available

Land

Acreage No
Fence Type Not Fenced
Land Amenities Park, Playground, Schools, Shopping
Size Depth 34.04 M
Size Frontage 6.87 M
Size Irregular 233.85
Size Total 233.85 M2|0-4,050 Sqft
Size Total Text 233.85 M2|0-4,050 Sqft
Zoning Description R-2m

Parking

Parking Pad

https://www.realtor.ca/real-estate/29440634/20536-sheriff-king-street-sw-calgary-belmont

Contact Us

Contact us for more information

Generating Captcha

    Your Name *

    Your Email *

    Your Contact Number *

    Subject

    Your Message

    Thank you for contacting us, one of our colleagues will contact you shortly. Thank you.

    Lakeridge Property International

    close-link